lemon-mirror:
Home >> Acura >> 2011 >> TL Base >> Repair and Diagnosis >> Body & Frame >> Frames, Subframes & Crossmembers >> Frame >> Frame Repair Chart >> Top View

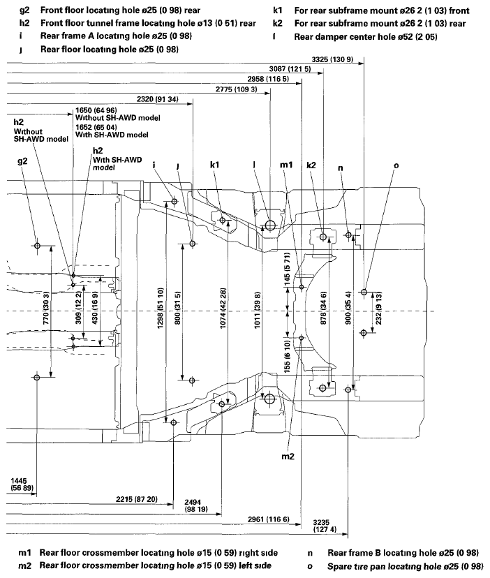
Top View

Fig 1: Frame Repair Chart - Top View (1 Of 2)
G05988531Courtesy of AMERICAN HONDA MOTOR CO., INC.
Fig 2: Frame Repair Chart - Top View (2 Of 2)
G05988532Courtesy of AMERICAN HONDA MOTOR CO., INC.