lemon-mirror:
Home >> Cadillac >> 1995 >> DeVille Base >> Repair and Diagnosis >> Engine Performance >> System >> Engine Controls - Tests W/Codes - 4.9L >> Pcm Code Charts >> Code P090, TCC Brake Switch Input Circuit Problem >> Action

Code P090, TCC Brake Switch Input Circuit Problem: Action

PCM turns on SERVICE VEHICLE SOON message. PCM disables cruise control.

NOTE: Test numbers refer to numbers on diagnostic chart.
  1. Testing TCC brake switch input to PCM PI71. If input is working correctly, display will change from HI to LO to HI. If display remains HI, check circuit No. 420 and TCC brake switch for short to voltage. If display remains LO, check circuit No. 420 for open or short to ground.
  2. Checks for voltage at TCC brake switch terminal "A".
  3. Checks circuit No. 741 for a short to ground or a blown fuse D1.
  4. Checks circuit No. 741 for an open or circuit No. 420 for a short to ground or a blown fuse D1.
  5. Checks circuit No. 420 for an open or a poor connection at PCM.
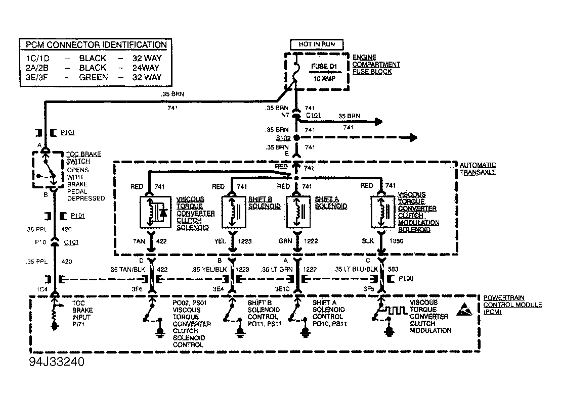
Fig 1: Code P090 Schematic, TCC Brake Switch Input Circuit Problem
G94J33240Courtesy of GENERAL MOTORS CORP.
Fig 2: Code P090 Diagnostic Flow Chart, TCC Brake Switch Input Circuit Problem
G95F13362Courtesy of GENERAL MOTORS CORP.