lemon-mirror:
Home >> Cadillac >> 1995 >> Eldorado Base >> Repair and Diagnosis >> Engine Performance >> System >> Engine Controls - Tests W/Codes >> Pcm Code Charts >> Code P042, Front Oxygen Sensor Lean Signal >> Action

Code P042, Front Oxygen Sensor Lean Signal: Action

PCM turns on MIL. PCM turns on canister purge solenoid if Code P044 is also set. Transaxle shift adapts are maintained at current levels.

NOTE: Test numbers refer to numbers on diagnostic chart.
  1. If Code P017 is present, diagnose this code first since an oxygen sensor not ready can cause other emission related problems.
  2. If oxygen sensor is operating correctly, voltage should fluctuate at greater than 0.3 volt. A lean sensor condition will cause voltage to remain at less than 0.3 volt.
  3. If voltage measured is greater than 0.15 volt, PCM and circuit No. 412 are okay.
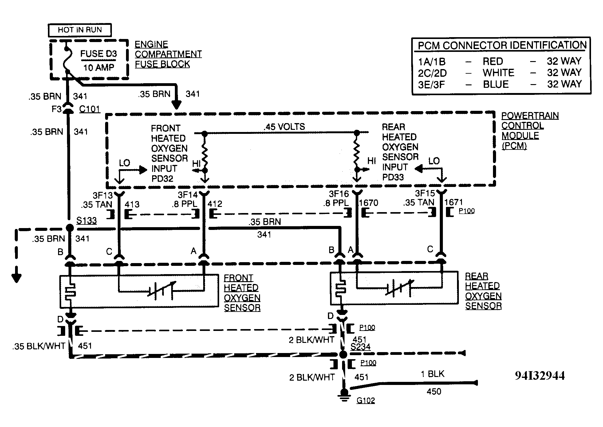
Fig 1: Code P042 Schematic, Front O2 Sensor Lean Signal
G94I32944Courtesy of GENERAL MOTORS CORP.
Fig 2: Code P042 Diagnostic Flow Chart, Front O2 Sensor Lean Signal
G94J32994Courtesy of GENERAL MOTORS CORP.