lemon-mirror:
Home >> Cadillac >> 1995 >> Eldorado Base >> Repair and Diagnosis >> Engine Performance >> System >> Engine Controls - Tests W/Codes >> Pcm Code Charts >> Code P065, Cruise Control Servo Position Sensor Failure >> Action

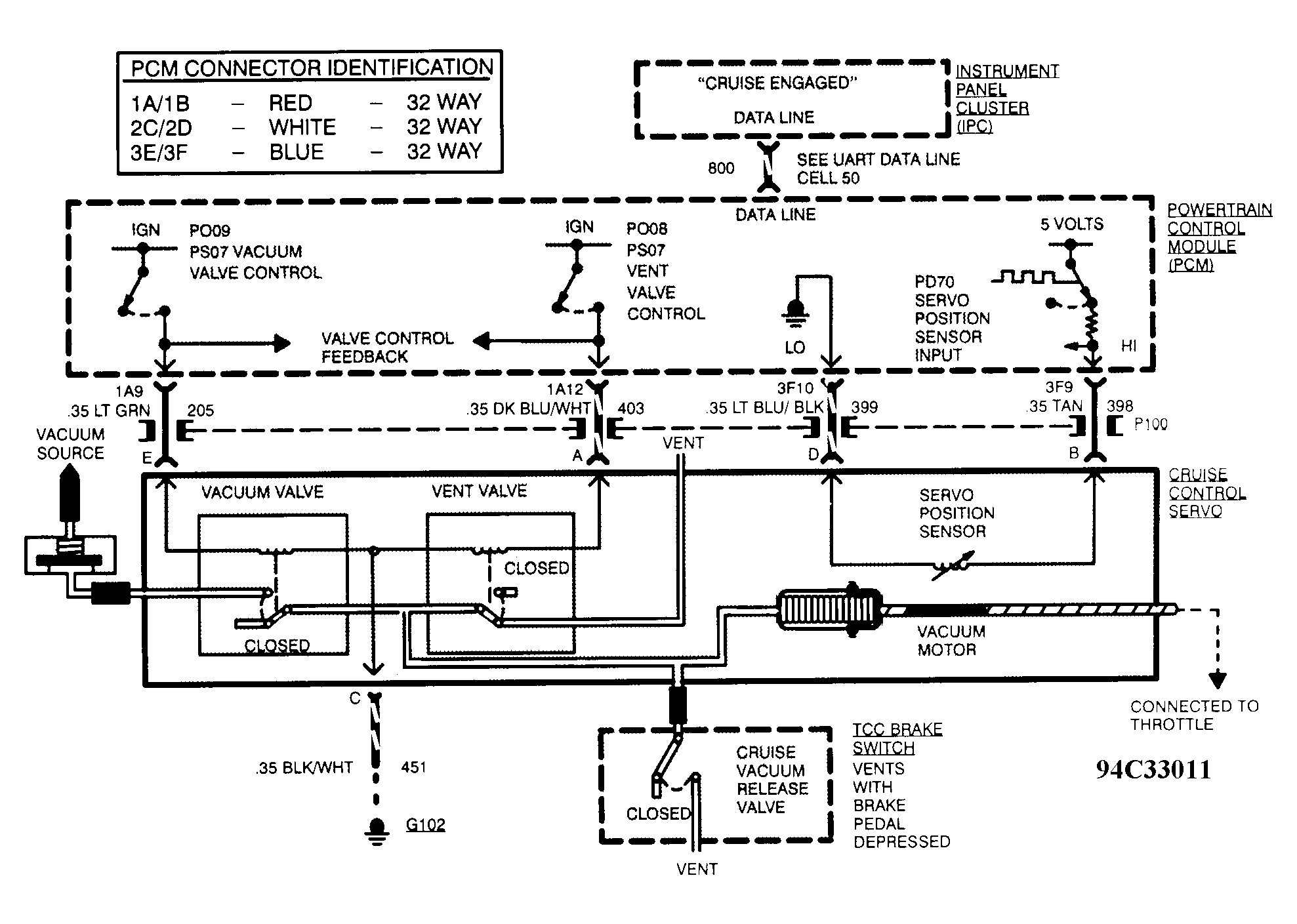
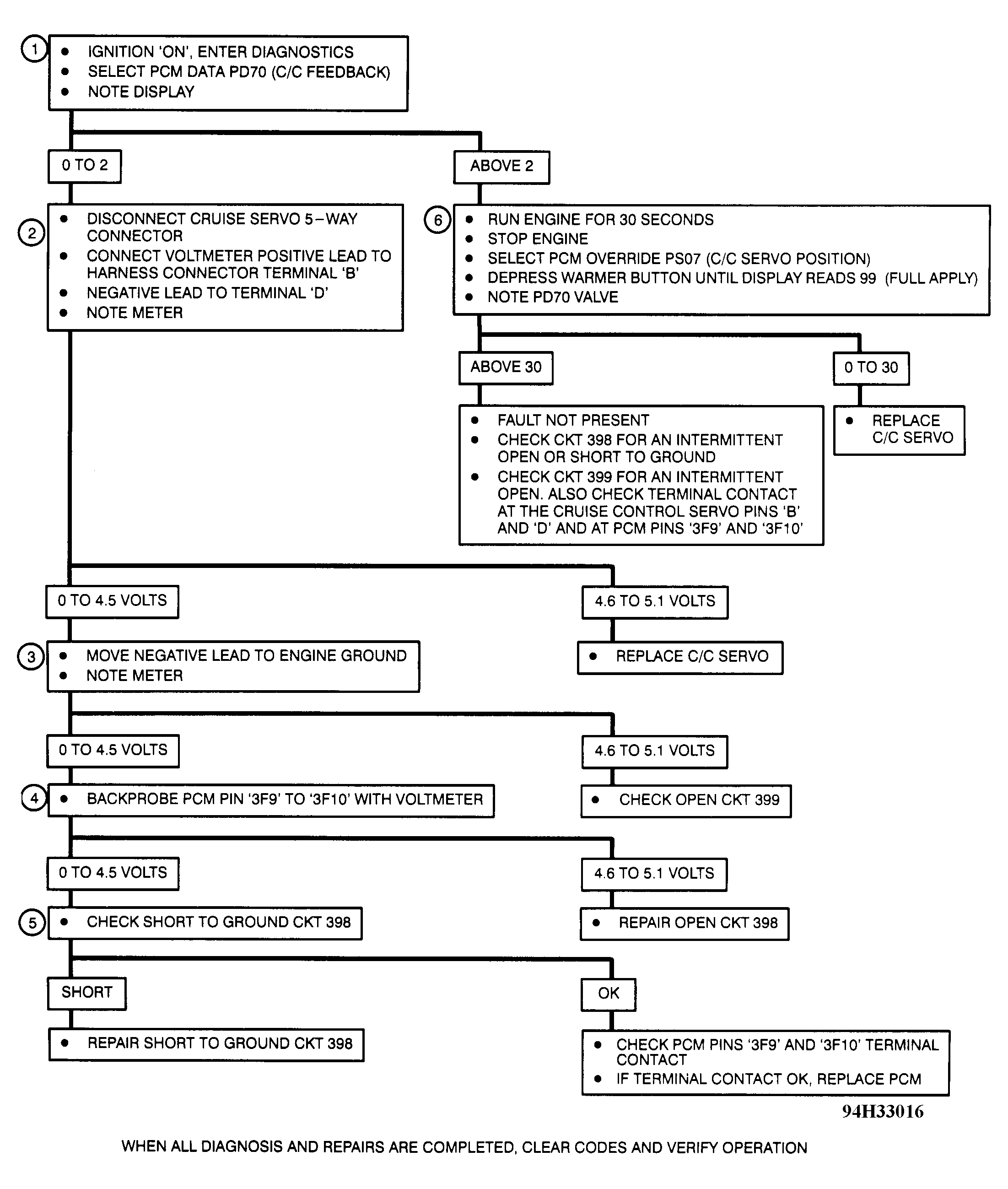
Code P065, Cruise Control Servo Position Sensor Failure: Action

PCM disables cruise control.

NOTE: Test numbers refer to numbers on diagnostic chart.
  1. Checks if cruise control feedback is a value that it should never be, even with servo fully released (0-2).
  2. Checks PCM and circuit to cruise control servo are okay. Voltage reading should be 4.6-5.1 volts.
  3. Checks circuit No. 399 for an open.
  4. Checks circuit No. 398 for an open.
  5. Checks circuit No. 398 for short to ground. If wire is okay, PCM is open internally.
  6. Checks if cruise control servo is operating normally. If feedback is greater than 30, servo is operating correctly.
Fig 1: Code P065 Schematic, Cruise Control Servo Position Sensor Failure
G94C33011Courtesy of GENERAL MOTORS CORP.
Fig 2: Code P065 Diagnostic Flow Chart, Cruise Control Servo Position Sensor Failure
G94H33016Courtesy of GENERAL MOTORS CORP.