lemon-mirror:
Home >> Cadillac >> 2009 >> STS V >> Repair and Diagnosis >> Engine Performance >> System >> Data Communication System >> Schematic and Routing Diagrams >> Body Control System Schematics

Body Control System Schematics

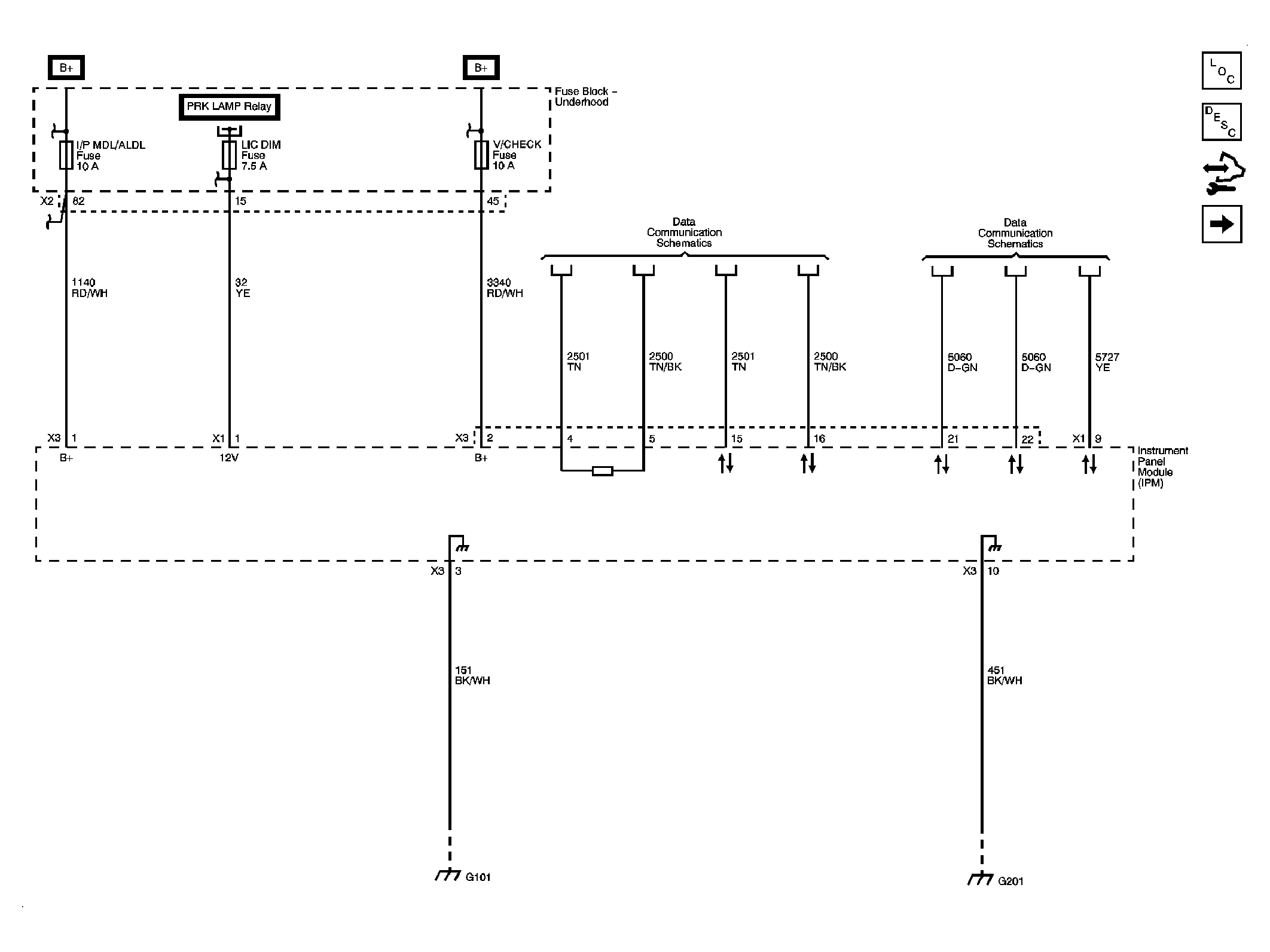
Fig 1: IPM Power, Grounds and DLC
GM2063577Courtesy of GENERAL MOTORS CORP.
Fig 2: IPM Inputs and Outputs 1 of 3
GM2063583Courtesy of GENERAL MOTORS CORP.
Fig 3: IPM Inputs and Outputs 2 of 3
GM2063588Courtesy of GENERAL MOTORS CORP.
Fig 4: IPM Inputs and Outputs 3 of 3
GM2063591Courtesy of GENERAL MOTORS CORP.
Fig 5: RIM Power, Grounds and DLC
GM2063596Courtesy of GENERAL MOTORS CORP.
Fig 6: RIM Inputs and Outputs
GM2063599Courtesy of GENERAL MOTORS CORP.