lemon-mirror:
Home >> Chrysler >> 2007 >> Crossfire Base, 2D Convertible >> Repair and Diagnosis >> Engine Performance >> System >> DTCS P0480 To P0702 >> P0602-Pcm Programmed Incorrect Trans/No Comm From TCM >> Notes

P0602-Pcm Programmed Incorrect Trans/No Comm From TCM: Notes

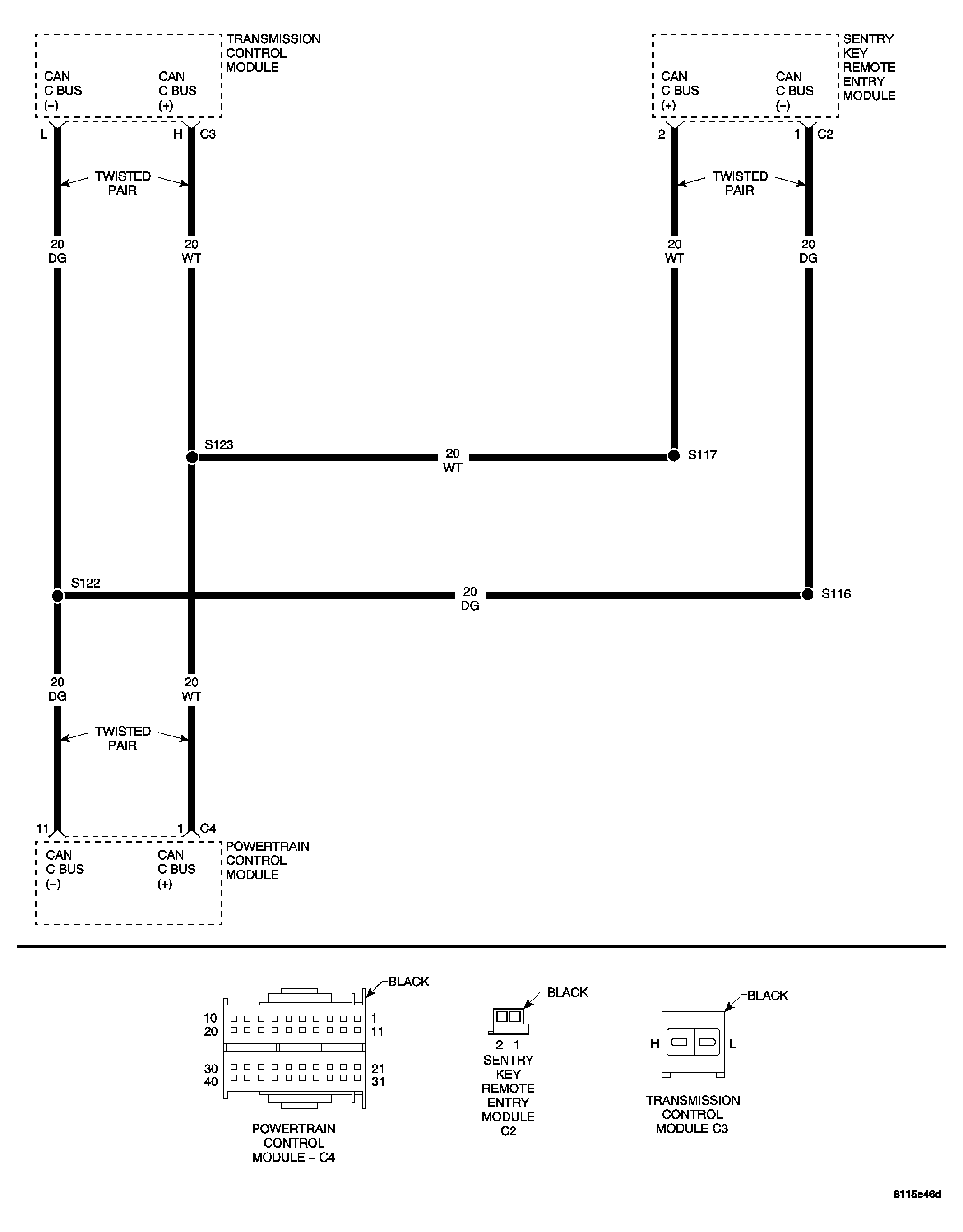
Fig 1: Transmission Control Module Communication Circuit Schematic
GC0034348Courtesy of CHRYSLER LLC
  1. When Monitored  : With the ignition on.
  2. Set Condition  : This DTC is set when a CAN ID is not received in the required time from the Transmission Control Module (TCM).
Possible Causes 
CAN C BUS (+)/(-) CIRCUIT OPEN
CAN C BUS (+)/(-) CIRCUIT SHORT TO GROUND
CAN C BUS (+)/(-) CIRCUIT SHORT TO VOLTAGE
TRANSMISSION CONTROL MODULE
SENTRY KEY REMOTE ENTRY MODULE
POWERTRAIN CONTROL MODULE

For a complete Electronic Control Module Circuit Diagram, refer to SCHEMATICS AND DIAGRAMS .