lemon-mirror:
Home >> Chrysler >> 2007 >> Crossfire Base, 2D Convertible >> Repair and Diagnosis >> Engine Performance >> System >> Emissions Control System >> Air Injection >> Description >> Description - Air Injection System

Description - Air Injection System

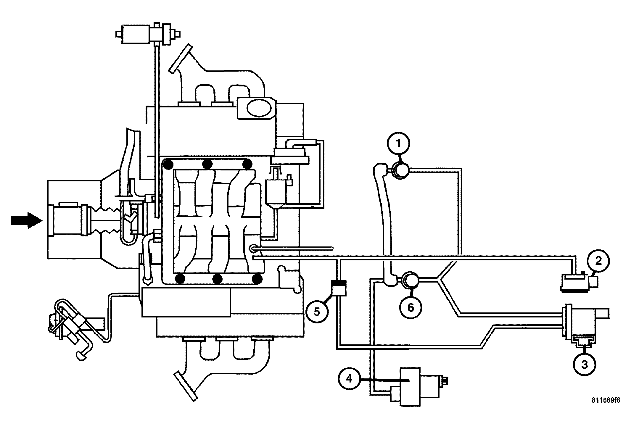
Fig 1: Identifying Air Injection Components
GC0033617Courtesy of CHRYSLER LLC
1 - AIR PUMP SWITCHOVER VALVE (LH)
2 - MANIFOLD ABSOLUTE PRESSURE SENSOR
3 - AIR PUMP SWITCHOVER SOLENOID
4 - AIR PUMP
5 - VACUUM CHECK VALVE
6 - AIR PUMP SWITCHOVER VALVE (RH)
-

This vehicle is equipped with an Air Pump that injects air into the exhaust to reduce the emissions during engine warm-up. The air injected into the exhaust will cause the catalytic converters to heat up more quickly. This will improve the emission levels during a cold start. The Air Pump Switchover System incorporates an Air Pump (4) with two Air Pump Switchover Valves (1 and 6), an Air Pump Switchover Solenoid (3), an Air Pump Relay, a Vacuum Check Valve (5) and the PCM.

The Air Pump Relay is located in the Relay Control Module and can be easily identified by referring to the relay control module label. The Air Pump is mounted to the top center of the engine timing cover. The Air Pump Switchover valves (1 and 6) are located at the front, top of the engine, mounted just in front of the left and right cylinder covers. The Air Pump Switchover Solenoid (3) is mounted on the right front of the engine, just below the Air Pump Switchover Valve RH (6).