lemon-mirror:
Home >> GMC >> 1996 >> C3500 HD 6.5 F, Automatic >> Repair and Diagnosis >> Engine Performance >> System >> Engine Controls - System/Component Tests - 6.5L >> Fuel System >> Glow Plug Controller

Glow Plug Controller

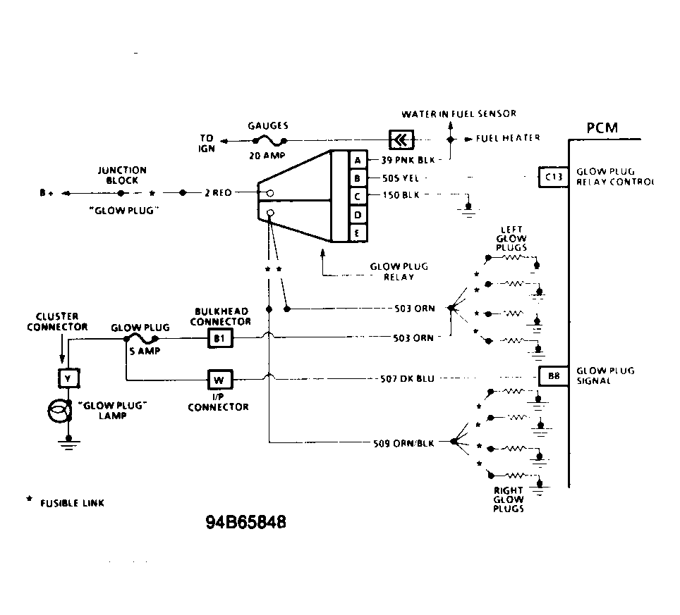
Fig 1: Diesel Glow Plug Circuit (6.5L Diesel)
G94B65848Courtesy of GENERAL MOTORS CORP.
  1. Ensure coolant temperature is less than 80°F (27°C) before beginning test. Place ignition switch in RUN position and allow glow plugs to cycle. After 2 minutes, crank engine for one second. It is NOT important that engine starts. Return ignition switch to RUN position. Glow plugs should cycle on at least once.
  2. If glow plugs do not cycle, disconnect controller (controller is located on top rear of valve cover). Connect a 12-volt test light between Pink/Black wire terminal of harness connector (terminal "A") and ground. See Fig 1. With ignition switch in RUN position, test light should be off. Test light should illuminate when engine is cranked.
  3. If test light does not illuminate as specified, repair short or open in engine harness Pink/Black wire. If test light illuminates as specified but glow plugs do not cycle, replace controller.