lemon-mirror:
Home >> Honda >> 2000 >> S2000 >> Repair and Diagnosis >> Body & Frame >> Frames, Subframes & Crossmembers >> Frame Repair Graph >> Top View

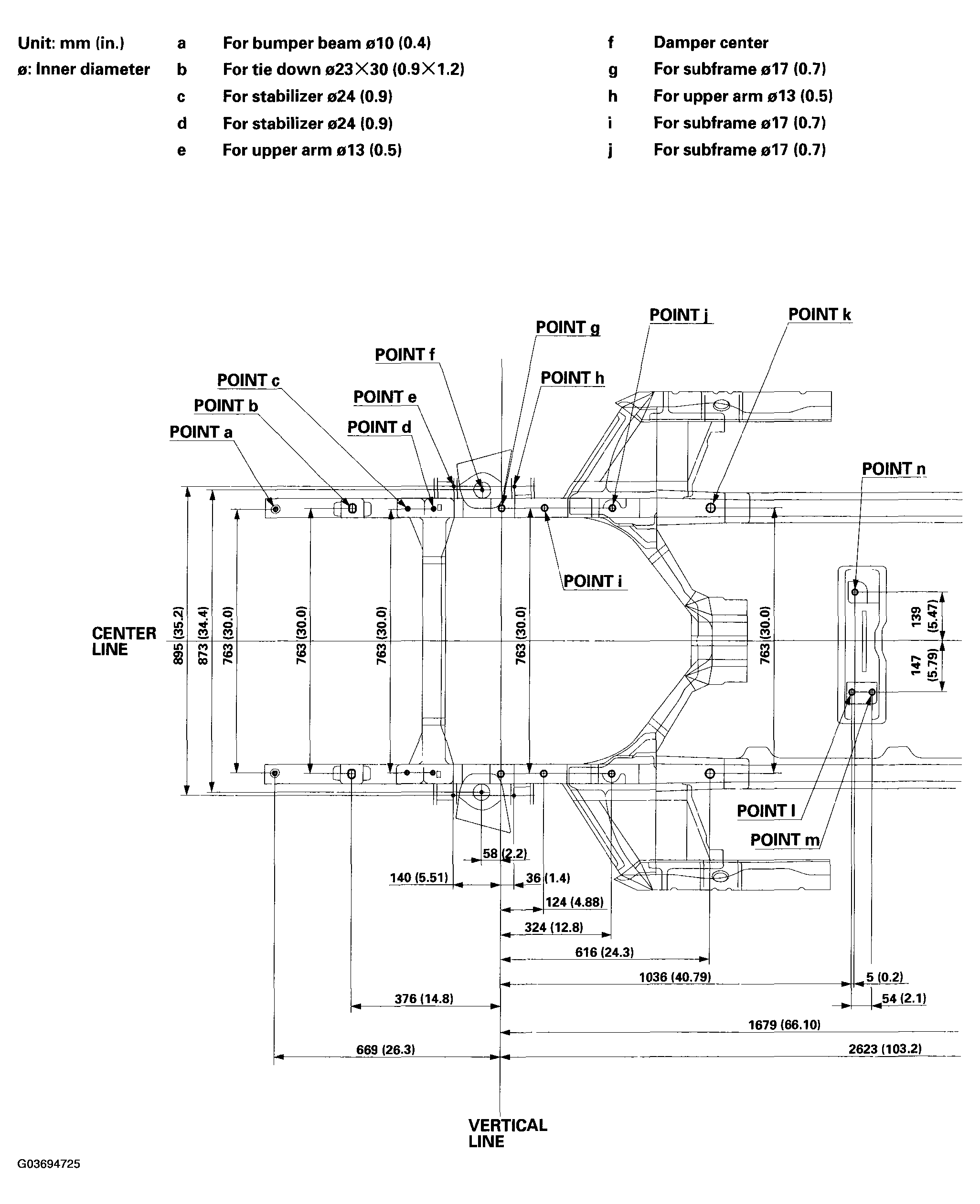
Top View

Fig 1: Identifying Frame Repair Graph - Top View (1 Of 2)
G03694725Courtesy of AMERICAN HONDA MOTOR CO., INC.
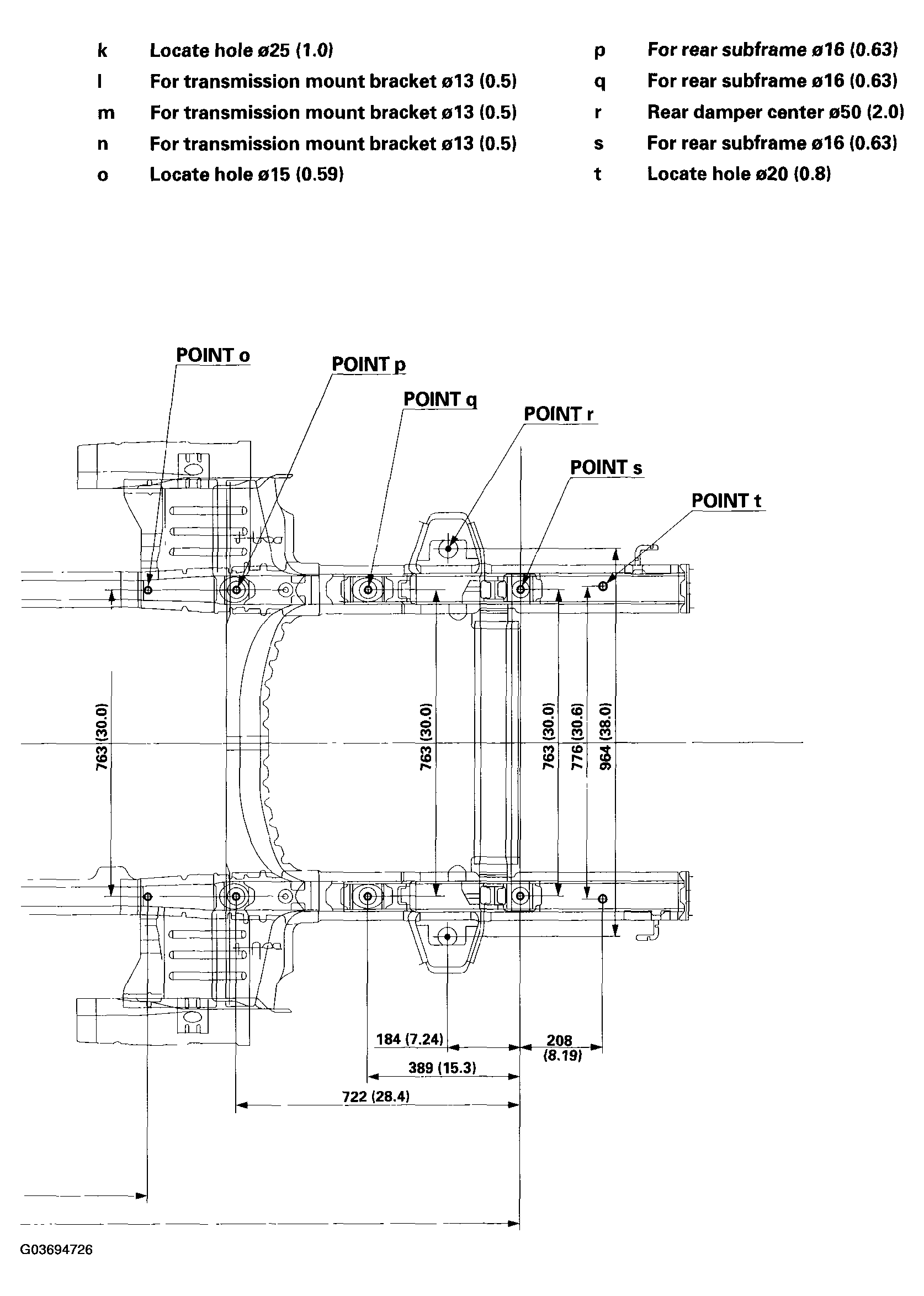
Fig 2: Identifying Frame Repair Graph - Top View (2 Of 2)
G03694726Courtesy of AMERICAN HONDA MOTOR CO., INC.