lemon-mirror:
Home >> Honda >> 2002 >> Insight Standard >> Repair and Diagnosis >> External Pages >> Different car >> Section 88 (Frame) >> Frame Repair Chart >> Top View

Top View

WARNING: This page is about a different car, the 2006 Honda Odyssey and 2005 Honda Odyssey. However, it is still accessible from the selected car via links, so may be relevant.
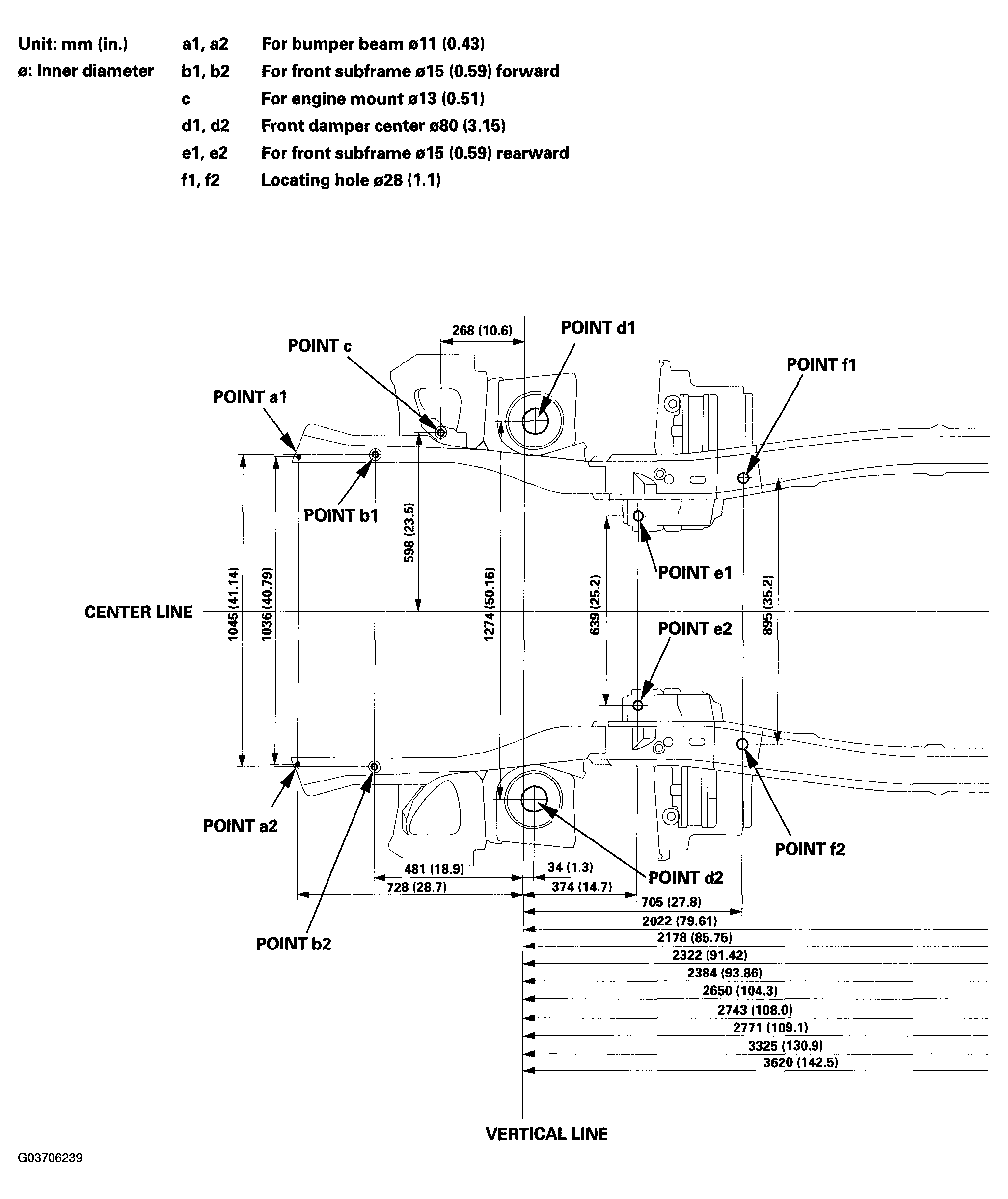
Fig 1: Identifying Frame Repair Dimensions (Top View - 1 Of 2)
G03706239Courtesy of AMERICAN HONDA MOTOR CO., INC.
Fig 2: Identifying Frame Repair Dimensions (Top View - 2 Of 2)
G03706240Courtesy of AMERICAN HONDA MOTOR CO., INC.