lemon-mirror:
Home >> Infiniti >> 1990 >> M30 >> Repair and Diagnosis >> Engine Performance >> System >> Engine Controls - Tests W/Codes >> Diagnostic Code Charts >> Code 12: Airflow Meter

Code 12: Airflow Meter

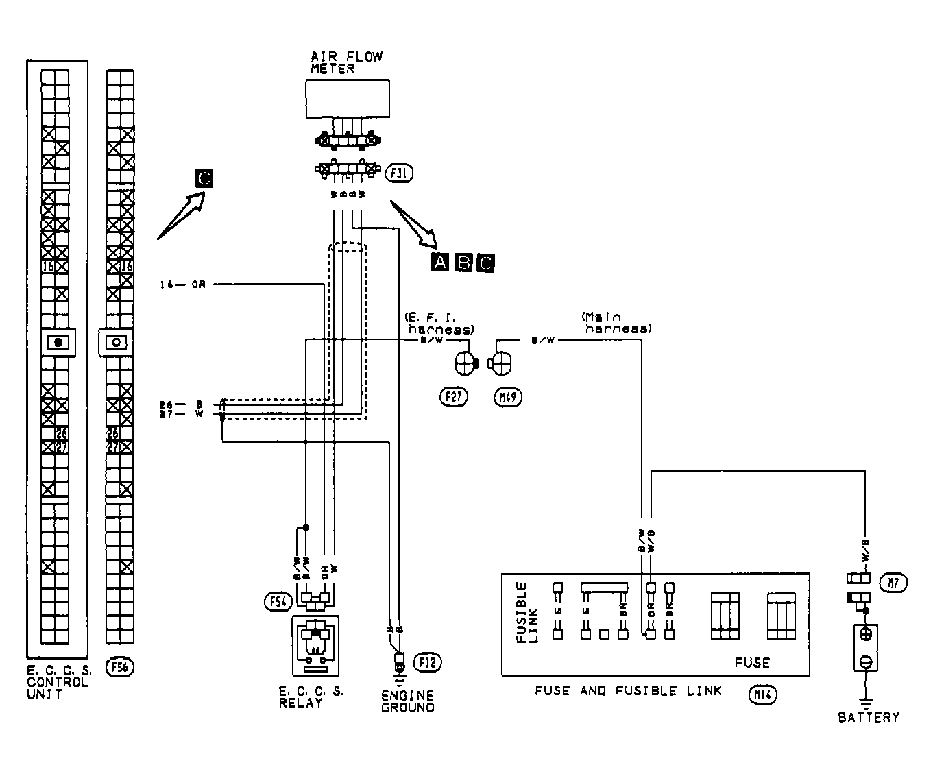
Fig 1: Code 12: Air Flow Meter Circuit Diagram
G90H18645Courtesy of NISSAN MOTOR CO., U.S.A.
Fig 2: Code 12: Air Flow Meter & ECU Harness Location
G90I18646Courtesy of NISSAN MOTOR CO., U.S.A.
Fig 3: Code 12: Air Flow Meter Flow Chart
G90J18647Courtesy of NISSAN MOTOR CO., U.S.A.