lemon-mirror:
Home >> Infiniti >> 2004 >> FX45 >> Repair and Diagnosis >> Engine Performance >> Engine Control System >> DTC P0011 & P0021 IVT Control >> Diagnostic Procedure

Diagnostic Procedure

  1. Check Ground Connections 
    1. Turn ignition switch OFF.
    2. Loosen and retighten three ground screws on the body. See Figure .

      Refer to GROUND INSPECTION  .

    OK or NG

    1. OK: go to 2.
    2. NG: Repair or replace ground connections.

  2. Check Intake Valve Timing Control Position Sensor Power Supply Circuit 
    1. Disconnect intake valve timing control position sensor harness connector.
      Fig 1: Locating Bank 1 Or 2 IVTC Position Sensors & Control Solenoids
      G00344595Courtesy of NISSAN MOTOR CO., U.S.A.
    2. Turn ignition switch ON.
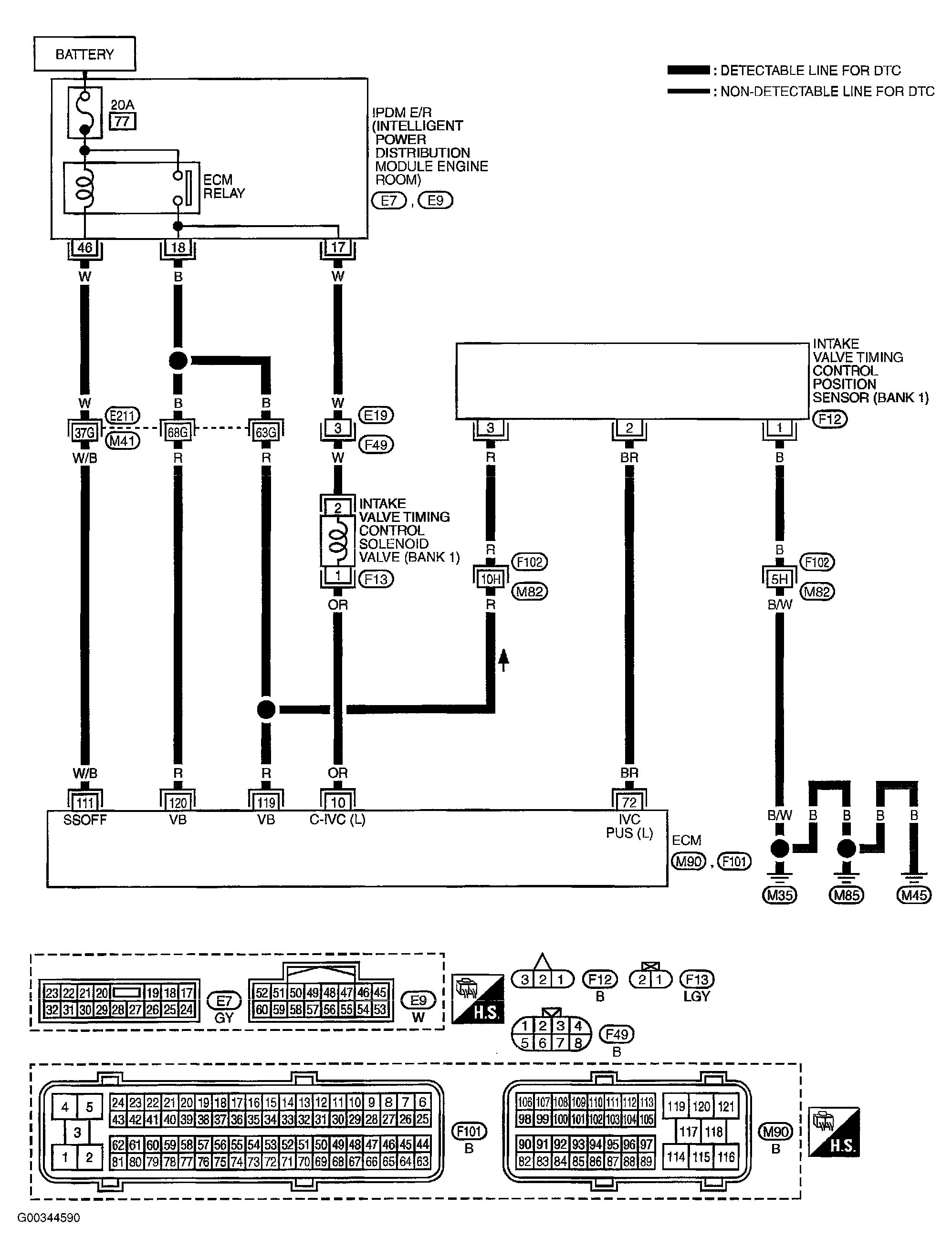
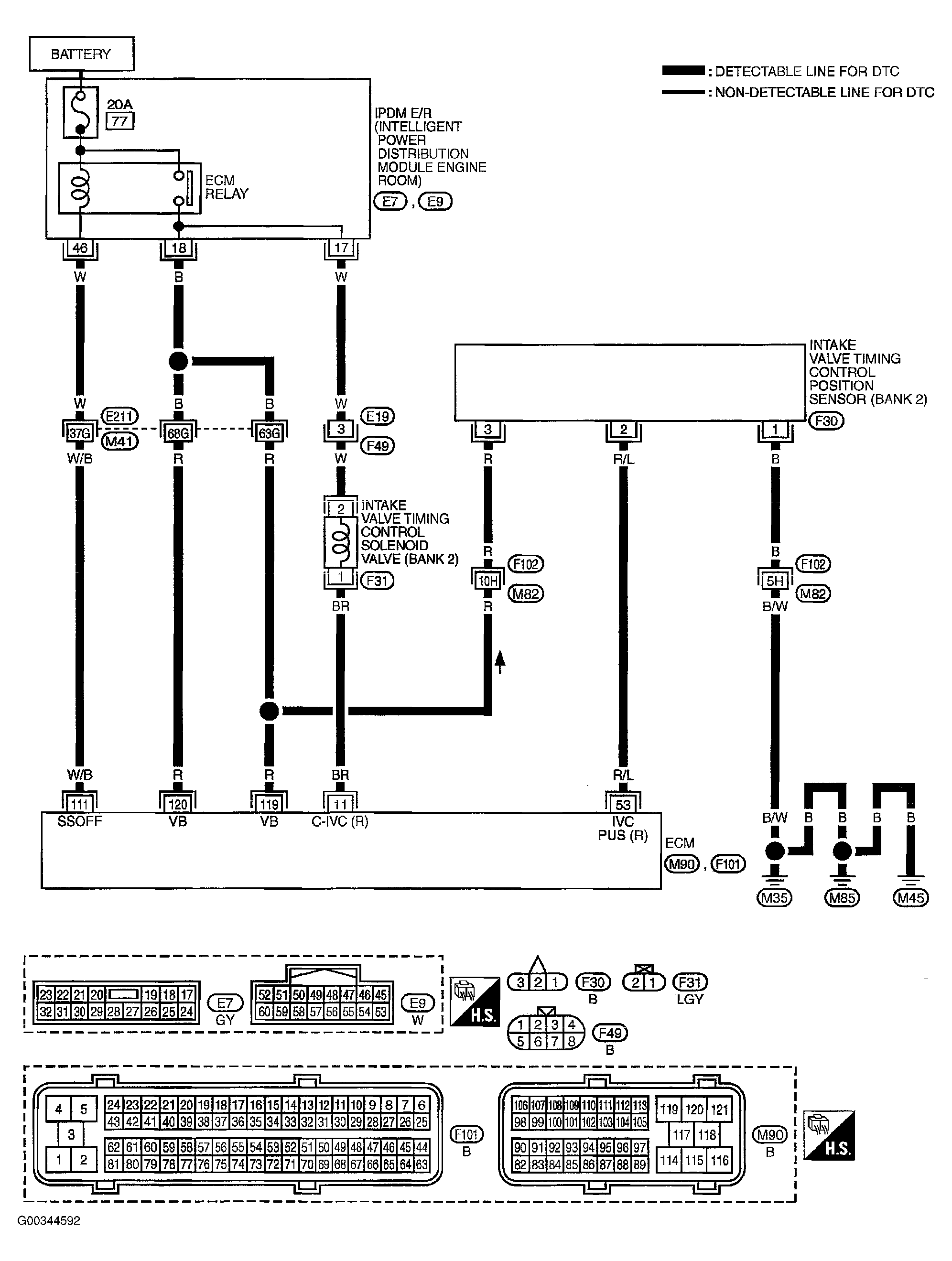
    3. Check voltage between intake valve timing control position sensor terminal 3 and ground with CONSULT-II or tester.
      1. Voltage: Battery voltage 

    OK or NG

    1. OK: go to  4 .
    2. NG: go to  3 .

    Fig 2: Checking Voltage Between Intake Valve Timing Control Position Sensor Terminal 3 & Ground (W/DVOM)
    G00344596Courtesy of NISSAN MOTOR CO., U.S.A.
  3. Detect Malfunctioning Part 

    Check the following.

    • Harness connectors E211, M41
    • Harness connectors F102, M82
    • Harness for open or short between intake valve timing control position sensor and ECM
    • Harness for open or short between intake valve timing control position sensor and IPDM E/R
      1. Repair open circuit or short to ground or short to power in harness or connectors.

  4. Check Intake Valve Timing Control Position Sensor Ground Circuit For Open And Short 
    1. Turn ignition switch OFF.
    2. Check harness continuity between intake valve timing control position sensor terminal 1 and ground. Refer to wiring diagram. See Figure or Figure .
      1. Continuity should exist  .
    3. Also check harness for short to power.

    OK or NG

    1. OK: go to  6 .
    2. NG: go to  5 .
  5. Detect Malfunctioning Part 

    Check the following.

    • Harness connectors F102, M82
    • Harness for open or short between intake valve timing control position sensor and ground
      1. Repair open circuit or short to power in harness or connectors.

  6. Check Intake Valve Timing Control Position Sensor Input Signal Circuit For Open And Short 
    1. Disconnect ECM harness connector.
    2. Check harness continuity between ECM terminal 72 and intake valve timing control position sensor (bank 1) terminal 2 or ECM terminal 53 and intake valve timing control position sensor (bank 2) terminal 2.

      Refer to wiring diagram. See Figure or Figure .

      1. Continuity should exist  .
    3. Also check harness for short to ground and short to power.

    OK or NG

    1. OK: go to  7 .
    2. NG: Repair open circuit or short to ground or short to power in harness or connectors.

  7. Check Intake Valve Timing Control Position Sensor 

    Refer to COMPONENT INSPECTION  .

    OK or NG

    1. OK: go to  8 .
    2. NG: Replace intake valve timing control position sensor.

  8. Check Intake Valve Timing Control Solenoid Valve Power Supply Circuit 
    1. Disconnect intake valve timing control solenoid valve harness connector. See Fig 1 .
    2. Turn ignition switch ON.
    3. Check voltage between intake valve timing control solenoid valve terminal 2 and ground with CONSULT-II or tester.
      Fig 3: Checking Voltage Between Intake Valve Timing Control Solenoid Valve Terminal 2 & Ground (W/DVOM)
      G00344598Courtesy of NISSAN MOTOR CO., U.S.A.
      1. Voltage: Battery voltage 

    OK or NG

    1. OK: go to  10 .
    2. NG: go to  9 .

  9. Detect Malfunctioning Part 

    Check the following.

    • Harness connectors E19, F49
    • Harness for open or short between intake valve timing control solenoid valve and IPDM E/R
      1. Repair open circuit or short to ground or short to power in harness or connectors.

  10. Check Intake Valve Timing Control Solenoid Valve Output Signal Circuit For Open And Short 
    1. Check harness continuity between ECM terminal 10 and intake valve timing control solenoid valve (bank 1) terminal 1 or ECM terminal 11 and intake valve timing control solenoid valve (bank 2) terminal 1. Refer to wiring diagram. See Figure or Figure .
      1. Continuity should exist  .
    2. Also check harness for short to ground and short to power.

    OK or NG

    1. OK: go to  11 .
    2. NG: Repair open circuit or short to ground or short to power in harness or connectors.

  11. Check Intake Valve Timing Control Solenoid Valve 

    Refer to COMPONENT INSPECTION  .

    OK or NG

    1. OK: go to  12 .
    2. NG: Replace intake valve timing control solenoid valve.

  12. Check Crankshaft Position Sensor (POS) 

    Refer to COMPONENT INSPECTION  .

    OK or NG

    1. OK: go to  13 .
    2. NG: Replace crankshaft position sensor (POS).

  13. Check Camshaft Position Sensor (Phase) 

    Refer to COMPONENT INSPECTION  .

    OK or NG

    1. OK: go to  14 .
    2. NG: Replace camshaft position sensor (PHASE).

  14. Check Camshaft 

    Check accumulation of debris to the signal pick-up portion of the camshaft. Refer to CAMSHAFT .

    OK or NG

    1. OK: go to  15 .
    2. NG: Remove debris and clean the signal pick-up cutout of camshaft.

  15. Check Intermittent Incident 

    Refer to TROUBLE DIAGNOSIS FOR INTERMITTENT INCIDENT 

    For wiring diagram, refer to WIRING DIAGRAM  for CKP sensor (POS), and WIRING DIAGRAM  for CMP sensor (PHASE).

    1. Inspection end