lemon-mirror:
Home >> Lexus >> 2005 >> ES 330 >> Repair and Diagnosis >> Engine Performance >> System >> SFI System - Diagnostics >> EVAP Inspection Procedure >> Inspection Procedure

Inspection Procedure

HINT:

Read freeze frame data. Freeze frame data records engine conditions when a malfunction is detected. When troubleshooting, freeze frame data can help determine if the vehicle was running or stopped, if the engine was warmed up or not, if the air-fuel ratio was lean or rich, and other data from the time the malfunction occurred.

  1. CHECK OTHER DTC OUTPUT (IN ADDITION TO DTC P0441, P0442, P0446 AND/OR P0456)iquest 

    Result 

    DTC OUTPUT RESULT

    Display (DTC output) Proceed to
    Only P0441, P0442, P0446 and/or P0456 are output A
    P0451, P0452 and P453 are output B

    HINT:

    If any other DTCs besides P0441, P0442, P0446 and/or P0456 are output, perform the troubleshooting for those DTCs first (reference: P0451, P0452, P0453 are vapor pressure sensor malfunctions).

    B: Go to RELEVANT  DIAGNOSTIC TROUBLE CODE CHART  

    A: GO TO NEXT STEP 

  2. CHECK CURRENT AND PENDING DTC 
    1. Check current DTCs. Select the hand-held tester menus: DIAGNOSIS, ENHANCED OBDII, DTC INFO and CURRENT DTCS.
    2. Check pending DTCs. Select the hand-held tester menus: DIAGNOSIS, ENHANCED OBDII, DTC INFO and PENDING DTCS.

    Result 

    CURRENT AND PENDING DTC RESULT

    Current DTC Pending DTC Conclusion
    Set Set System has been malfunctioning. Problem can be specified.
    Set - System was malfunctioning in previous driving cycle. Problem may be specified.
    - Set System is malfunctioning. This is intermittent problem and caused by fuel tank cap loosing. Otherwise, this problem may be difficult to eliminate.

    HINT:

    The ECM stores the current DTC and illuminates the MIL when an emission-related component is malfunctioning in 2 consecutive driving cycles (2 trips). The MIL is turned OFF, if the component is functioning normally in 3 consecutive driving cycles. The ECM erases the current DTC, if the component is functioning normally in 40 consecutive driving cycles.

    The ECM stores the pending DTC when If the component is malfunctioning in present driving cycle (1 trip). The ECM erases the pending DTC, if the component is functioning normally in the next driving cycle.

    NEXT: GO TO NEXT STEP 

  3. PREDICT POSSIBLE MALFUNCTION AREA 

    Find the DTC in the table below to suspect a malfunction area.

    EVAP DTC Matrix 

    Fig 1: EVAP DTC Matrix Chart
    G02937853Courtesy of © TOYOTA, LICENSE AGREEMENT TMS1002
    MALFUNCTION AREA DTC

    DTCs Suspected Malfunction Area
    P0441 only EVAP VSV stuck open
    P0446 only CCV (vent valve) stuck open
    P0442 and/or P0456 Small leak

    NEXT: GO TO NEXT STEP 

  4. PERFORM EVAP SYSTEM CHECK 
    NOTE: The EVAP system check can be used for confirmation after the EVAP system repair. Check DTCs after performing the EVAP system check. If no pending DTC is set, the EVAP system is functioning normally and the repair is completed.
    1. Select the "mmHg" unit. Select the hand-held tester menus: DIAGNOSIS, SETUP, UNIT CONVERSION and VAPOR PRESS.
    2. Allow the engine to idle.
    3. Perform the EVAP system check to find a malfunction area. Select the hand-held tester menus: DIAGNOSIS, ENHANCED OBD II, SYSTEM CHECK and LEV II SYS CHECK.
    4. Read NOTICE and press ENTER.

    HINT:

    The EVAP system check is most accurate when the following conditions are being set:

    • Atmospheric pressure is 762 mmHg (sea level).
    • The engine coolant and intake air temperatures are 4 to 35°C (40 to 90°F).
    • The fuel tank level is 1/4 to 3/4.

    Diagram of LEVII EVAP System Check 

    Fig 2: LEVII EVAP System Check Diagram
    G02937854Courtesy of © TOYOTA, LICENSE AGREEMENT TMS1002

    NEXT: GO TO NEXT STEP 

  5. EVAP SYSTEM CHECK STEP   1  (INITIALIZE SYSTEM) 
    Fig 3: Initialize System Check Diagram
    G02937855Courtesy of © TOYOTA, LICENSE AGREEMENT TMS1002

    Wait for 30 seconds.

    Fig 4: EVAP System Check (Initialize System) Display
    G02937856Courtesy of © TOYOTA, LICENSE AGREEMENT TMS1002
  6. EVAP SYSTEM CHECK STEP   2  (CHECK FOR CCV) 
    Fig 5: CCV Check Diagram
    G02937857Courtesy of © TOYOTA, LICENSE AGREEMENT TMS1002
    1. Press RIGHT to go to step  2.
    2. Wait for 30 seconds and check VAPOR PRESS (EVAP pressure).
      Fig 6: EVAP System Check (CCV) Display
      G02937858Courtesy of © TOYOTA, LICENSE AGREEMENT TMS1002

    Result 

    Fig 7: Vapor Pressure Check Result Table
    G02937859Courtesy of © TOYOTA, LICENSE AGREEMENT TMS1002

    HINT:

    In this step, the intake manifold pressure (vacuum) is applied to the EVAP system. However, the fuel tank pressure does not drop due to the CCV (vent valve) open.

    NG: Go to step   11 

    OK: GO TO NEXT STEP 

  7. EVAP SYSTEM CHECK STEP   3  (INITIALIZE SYSTEM) 
    Fig 8: Initialize System Check Diagram
    G02937860Courtesy of © TOYOTA, LICENSE AGREEMENT TMS1002
    1. Press RIGHT to go to step  3.
    2. Wait for 30 seconds.
      Fig 9: EVAP System Check (Initialize System) Display
      G02937861Courtesy of © TOYOTA, LICENSE AGREEMENT TMS1002

    NEXT: GO TO NEXT STEP 

  8. EVAP SYSTEM CHECK STEP   4  (CHECK FOR EVAP VSV STUCK OPEN) 
    Fig 10: EVAP VSV Check Diagram
    G02937862Courtesy of © TOYOTA, LICENSE AGREEMENT TMS1002
    1. Press RIGHT to go to step  4.
    2. Wait for 15 seconds and check VAPOR PRESS (EVAP pressure).
      Fig 11: EVAP System Check (EVAP VSV Stuck Open) Display
      G02937863Courtesy of © TOYOTA, LICENSE AGREEMENT TMS1002

    Result 

    VAPOR PRESSURE CHECK RESULT

    VAPOR PRESS Conclusion Proceed to
    Higher than 758 mmHg-a (-4 mmHg-g) Trouble area has not been found yet. OK
    Lower than 758 mmHg-a (-4 mmHg-g) EVAP VSV stuck open NG

    NG: Go to step   15 

    OK: GO TO NEXT STEP 

  9. EVAP SYSTEM CHECK STEP   5  (APPLYING VACUUM) 
    Fig 12: EVAP System (Applying Vacuum) Check
    G02937864Courtesy of © TOYOTA, LICENSE AGREEMENT TMS1002
    1. Press RIGHT to go to step  5.
    2. Wait for 30 seconds and check VAPOR PRESS (EVAP pressure).
      Fig 13: EVAP System Check (Applying Vacuum) Display
      G02937865Courtesy of © TOYOTA, LICENSE AGREEMENT TMS1002

    Result 

    Fig 14: Vapor Pressure Check Result Table
    G02937866Courtesy of © TOYOTA, LICENSE AGREEMENT TMS1002
    NOTE:
    • If the pressure is lower than 740 mmHg-a (-22 mmHg-g), the hand-held tester closes the EVAP VSV.
    • If the pressure is lower than 735 mmHg-a (-27 mmHg-g), the hand-held tester cancels the EVAP system check.
    Fig 15: EVAP System Check (Applying Vacuum) Diagram
    G02937867Courtesy of © TOYOTA, LICENSE AGREEMENT TMS1002
    Fig 16: EVAP Error Display
    G02937868Courtesy of © TOYOTA, LICENSE AGREEMENT TMS1002

    B: Go to step   16 

    C: Go to step   19 

    A: GO TO NEXT STEP 

  10. EVAP SYSTEM CHECK STEP   6  (LEAK CHECK FOR EVAP SYSTEM) 
    Fig 17: EVAP System Leak Check Diagram
    G02937869Courtesy of © TOYOTA, LICENSE AGREEMENT TMS1002
    1. Press RIGHT to go to step  6 when the VAPOR PRESS (EVAP pressure) is lower than 742 mmHg-a (-20 mmHg-g).
    2. Wait for 300 seconds and check VAPOR PRESS (EVAP pressure).
      Fig 18: EVAP System Check (EVAP System Leak) Display
      G02937870Courtesy of © TOYOTA, LICENSE AGREEMENT TMS1002

    Result 

    VAPOR PRESSURE CHECK RESULT

    VAPOR PRESS Conclusion Proceed to
    Less than 758 mmHg-a (-4 mmHg-g) EVAP system is functioning normally. OK
    Higher than 758 mmHg-a (-4 mmHg-g) Leakage NG

    NG: Go to step   19 

    OK: Go to step 10 

  11. CHECK CCV 
    1. Turn the ignition switch to OFF.
    2. Turn the ignition switch to ON
    3. Switch the CCV (vent valve) using the hand-held tester. Select the hand-held tester menus: DIAGNOSIS, ENHANCED OBD II, ACTIVE TEST and CAN CTRL VSV
    4. Touch the CCV and check the operation during switching the CCV.
      Fig 19: Checking CCV
      G02937871Courtesy of © TOYOTA, LICENSE AGREEMENT TMS1002

    Result 

    CCV OPERATION RESULT

    CCV (Vent Valve) Conclusion Proceed to
    CCV is operated CCV is functioning normally. OK
    CCV is not operated CCV is malfunctioning. NG

    NG: Go to step   26 

    OK: GO TO NEXT STEP 

  12. CHECK AIR INLET LINE RESTRICTION 
    1. Disconnect the air inlet line from the CCV.
    2. Remove and reinstall the fuel tank cap to release the fuel tank pressure.
    3. Allow the engine to idle.
      Fig 20: Identifying CCV For Disconnecting Air Inlet Line
      G02937872Courtesy of © TOYOTA, LICENSE AGREEMENT TMS1002
    4. Perform step  2 of the EVAP system check.
    5. Wait for 30 seconds and check VAPOR PRESS (EVAP pressure).
      Fig 21: EVAP System Check (CCV) Display For Air Inlet Line Restriction
      G02937873Courtesy of © TOYOTA, LICENSE AGREEMENT TMS1002

    Result 

    VAPOR PRESSURE CHECK RESULT

    VAPOR PRESS Conclusion Proceed to
    Higher than 752 mmHg-a (-10 mmHg-g) Blockage in canister filter A
    Lower than 752 mmHg-a (-10 mmHg-g) Blockage in CCV (vent valve) or canister B
  13. Reconnect the air inlet line to the CCV.

    B: Go to step 13 

    A: REPLACE CANISTER FILTER 

  14. CHECK CANISTER BLOCKAGE 
    1. Turn the ignition switch to OFF.
    2. Remove the CCV from the canister.
    3. Remove and reinstall the fuel tank cap to release the fuel tank pressure.
    4. Allow the engine to idle.
      Fig 22: Identifying CCV
      G02937874Courtesy of © TOYOTA, LICENSE AGREEMENT TMS1002
    5. Perform step  2 of the EVAP system check.
    6. Wait for 30 seconds and check VAPOR PRESS (EVAP pressure).
      Fig 23: EVAP System Check (CCV) Display For Canister Blockage
      G02937875Courtesy of © TOYOTA, LICENSE AGREEMENT TMS1002

    Result 

    VAPOR PRESSURE CHECK RESULT

    VAPOR PRESS Conclusion Proceed to
    Higher than 752 mmHg-a (-10 mmHg-g) CCV (vent valve) stuck closed A
    Lower than 752 mmHg-a (-10 mmHg-g) Blockage in canister B

    B: CHECK AND REPLACE CHARCOAL CANISTER (See  REPLACEMENT  ) 

    A: REPLACE CCV (VENT VALVE) 

  15. CHECK EVAP VSV (FOR EVAP VSV STUCK OPEN) 
    1. Turn the ignition switch to OFF.
    2. Disconnect the purge hose of the canister from the EVAP VSV.
    3. Disconnect the EVAP VSV connector.
    4. Allow the engine to idle.
    5. Touch the EVAP VSV port to check the vacuum.
      Fig 24: Disconnecting EVAP VSV Connector
      G02937876Courtesy of © TOYOTA, LICENSE AGREEMENT TMS1002

    Result 

    EVAP VSV RESULT

    EVAP VSV Conclusion Proceed to
    Vacuum is applied. EVAP VSV is malfunctioning. A
    No vacuum is applied. Electrical circuit of EVAP VSV is malfunctioning. B

    B: Go to step   30 

    A: REPLACE EVAP VSV 

  16. CHECK FUEL TANK CAP 
    1. Remove the fuel tank cap and reinstall it until a few click sound is heard.
    2. Clear the DTCs.
    3. Check pending DTCs after the EVAP system check. If no pending DTC is set, the DTC (s) was set due to the fuel cap loosening.

    If necessary, replace the fuel cap.

    NG: Go to step 16 

    OK: REPAIR IS COMPLETE 

  17. CHECK EVAP VSV (FOR EVAP VSV STUCK CLOSED) 
    1. Disconnect the purge hose of the canister from the EVAP VSV.
    2. Allow the engine to idle
    3. Switch the EVAP VSV using the hand-held tester. Select the hand-held tester menus: DIAGNOSIS, ENHANCED OBD II, ACTIVE TEST and EVAP VSV.
    4. Touch the EVAP VSV port to check the vacuum.

    HINT:

    The EVAP VSV can be tested with the EVAP Test Equipment (go to step  40).

    Fig 25: Checking EVAP VSV Function
    G02937877Courtesy of © TOYOTA, LICENSE AGREEMENT TMS1002

    Result 

    Fig 26: EVAP VSV Result Table
    G02937878Courtesy of © TOYOTA, LICENSE AGREEMENT TMS1002

    NG: Go to step   32 

    OK: GO TO NEXT STEP 

  18. CHECK CCV (FOR CCV STUCK OPEN) 
    1. Turn the ignition switch to OFF.
    2. Remove the CCV (vent valve) and plug the canister.
    3. Allow the engine to idle.
      Fig 27: Removing CCV And Plug Canister
      G02937879Courtesy of © TOYOTA, LICENSE AGREEMENT TMS1002
    4. Apply vacuum to the EVAP system with the EVAP system check. Perform step  5 "Applying Vacuum".
    5. Wait for 30 seconds and check the VAPOR PRESS (EVAP pressure).
      Fig 28: EVAP System Check Display For CCV Stuck Open
      G02937880Courtesy of © TOYOTA, LICENSE AGREEMENT TMS1002

    Result 

    VAPOR PRESSURE CHECK RESULT

    VAPOR PRESS Conclusion Proceed to
    Lower than 747 mmHg-a (-15 mmHg-g) CCV (vent valve) stuck open A
    Higher than 747 mmHg-a (-15 mmHg-g) Blockage in canister Blockage in purge line (Fuel tank - Canister) Blockage in purge line (Fuel tank - EVAP VSV) B

    B: Go to step   21 

    A: Go to step   25 

  19. CHECK FUEL TANK CAP 
    1. Remove the fuel tank cap and reinstall it until a few click sound is heard.
    2. Clear the DTCs.
    3. Check pending DTCs after the EVAP system check. If no pending DTC is set, the DTC (s) was set due to the fuel cap loosening.

    If necessary, replace the fuel cap.

    NG: Go to step 19 

    OK: REPAIR IS COMPLETE 

  20. CHECK FILLER NECK DAMAGE 
    1. Remove the fuel tank cap.
    2. Visually inspect the filler neck for damage.
    3. Reinstall the fuel tank cap.

    HINT:

    A leak point may be found with the EVAP Test Equipment (go to step  37).

    Fig 29: Identifying Filler Neck For Damage Check
    G02937881Courtesy of © TOYOTA, LICENSE AGREEMENT TMS1002

    NG: REPLACE FUEL TANK INLET PIPE 

    OK: GO TO NEXT STEP 

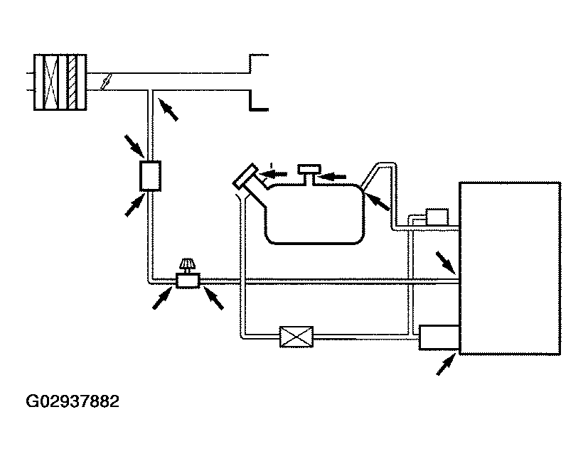
  21. CHECK PURGE LINE (CANISTER - FUEL TANK) 
    1. Check that the pipes and hoses are connected correctly.
    2. Check that the pipes and hoses are not loose or disconnected.
    3. Check the pipes and hoses have no damage or blockage.

    NG: REPLACE PURGE HOSE 

    Fig 30: Checking Pipes And Hoses For Loosing, Damage And Blockage
    G02937882Courtesy of © TOYOTA, LICENSE AGREEMENT TMS1002

    OK: GO TO NEXT STEP 

  22. CHECK PURGE LINE (CANISTER - EVAP VSV) 
    1. Check that the pipes and hoses are connected correctly.
    2. Check that the pipes and hoses are not loose or disconnected.
    3. Check the pipes and hoses have no damage or blockage.

    NG: REPLACE PURGE HOSE 

    OK: GO TO NEXT STEP 

  23. INSPECT CANISTER (See  ON-VEHICLE INSPECTION  ) 

    NG: REPLACE CANISTER 

    OK: GO TO NEXT STEP 

  24. INSPECT FUEL TANK 
    1. Check that the fuel tank has no damage.
    2. Check the fuel inlet pipe has no damage.
    3. Check leakage from the fuel pump unit.

    NG: REPAIR OR REPLACE DEFECTIVE OR DAMAGED PARTS 

    OK: Go to step   41 

  25. CHECK CCV 
    1. Stop the engine and turn the ignition switch ON.
    2. Switch the CCV (vent valve) using the hand-held tester. Select the hand-held tester menus: DIAGNOSIS, ENHANCED OBD II, ACTIVE TEST and CAN CTRL VSV.
    3. Touch the CCV and check the operation during switching the CCV.
      Fig 31: Checking CCV
      G02937883Courtesy of © TOYOTA, LICENSE AGREEMENT TMS1002

    Result 

    CCV OPERATION RESULT

    CCV (Vent Valve) Conclusion Proceed to
    CCV is operated Electrical circuit of CCV is functioning normally. A
    CCV is not operated Electrical circuit of CCV is malfunctioning. B

    B: Go to step   27 

    A: GO TO NEXT STEP 

  26. CHECK CCV 
    1. Turn the ignition switch OFF.
    2. Remove the CCV (vent valve).
    3. Connect the CCV connector.
    4. Turn the ignition switch ON.
    5. Switch the CCV using the hand-held tester. Select the hand-held tester menus: DIAGNOSIS, ENHANCED OBD II, ACTIVE TEST and CAN CTRL VSV.
    6. Apply air to the CCV port using an air gun and check the airflow.
      Fig 32: Checking CCV Normal Functioning Condition
      G02937884Courtesy of © TOYOTA, LICENSE AGREEMENT TMS1002

    Result 

    Fig 33: CCV Air Flow Check Result Table
    G02937885Courtesy of © TOYOTA, LICENSE AGREEMENT TMS1002

    B: REPLACE CCV (See  REPLACEMENT  ) 

    A: GO TO NEXT STEP 

  27. CHECK WIRE HARNESS AND CONNECTOR (CCV - POWER SOURCE) 
    1. Turn the ignition switch OFF.
    2. Disconnect the CCV connector.
    3. Turn the ignition switch ON.
    4. Measure the voltage between terminal 2 of the wire harness side connector and body ground.
      Fig 34: Measuring Voltage Between Terminals 2 Of Wire Harness Side Connector And Body Ground
      G02937886Courtesy of © TOYOTA, LICENSE AGREEMENT TMS1002

    Result 

    VOLTAGE RESULT

    Voltage Conclusion Proceed to
    Battery voltage Wire harness (CCV - Power source) is OK. OK
    0 to 3V Wire harness (CCV - Power source) is short circuit. NG

    NG: REPAIR OR REPLACE WIRE HARNESS 

    OK: GO TO NEXT STEP 

  28. CHECK WIRE HARNESS AND CONNECTOR (CCV - ECM) 
    1. Switch the CCV using the hand-held tester. Select the hand-held tester menus: DIAGNOSIS, ENHANCED OBD II, ACTIVE TEST and CAN CTRL VSV.
    2. Measure the resistance between terminal 1 of the wire harness side connector and body ground.
      Fig 35: Measuring Resistance Between Terminals 1 Of Wire Harness Side Connector And Body Ground
      G02937887Courtesy of © TOYOTA, LICENSE AGREEMENT TMS1002

    Result 

    Fig 36: CCV Connector Resistance Result Table
    G02937888Courtesy of © TOYOTA, LICENSE AGREEMENT TMS1002

    NG: Go to step 28 

    OK: REPLACE CCV 

  29. CHECK WIRE HARNESS AND CONNECTOR (CCV - ECM) 
    1. Check the wire harness between the ECM and CCV.
    2. Turn the ignition switch OFF.
    3. Disconnect the E8 ECM connector.
    4. Measure the resistance between the CCV and ECM wire harness side connectors.

    Standard 

    TERMINALS SPECIFIED CONDITION

    Tester Connection Specified Condition
    1 (CCV) - E8-27 (ECM) Less than 10Ω
    1 (CCV) - Body ground More than 10kΩ

    NG: REPAIR OR REPLACE HARNESS AND CONNECTOR 

    Fig 37: Disconnecting E8 ECM Connector
    G02937889Courtesy of © TOYOTA, LICENSE AGREEMENT TMS1002

    OK: CHECK AND REPLACE ECM 

  30. CHECK EVAP VSV 
    1. Turn the ignition switch ON.
    2. Switch the EVAP VSV using the hand-held tester. Select the hand-held tester menus: DIAGNOSIS, ENHANCED OBD II, ACTIVE TEST and EVAP VSV (Alone).
    3. Listen to click sounds to check the EVAP VSV operation.
      Fig 38: Checking EVAP VSV
      G02937890Courtesy of © TOYOTA, LICENSE AGREEMENT TMS1002

    Result 

    EVAP VSV OPERATION RESULT

    EVAP VSV Conclusion Proceed to
    Operated Electrical circuit of EVAP VSV is functioning normally. OK
    Not operated Electrical circuit of EVAP VSV is malfunctioning. NG

    NG: Go to step   33 

    OK: GO TO NEXT STEP 

  31. CHECK EVAP VSV 
    1. Disconnect the purge hose of the canister from the EVAP VSV.
    2. Start the engine.
    3. Switch the EVAP VSV using the hand-held tester. Select the hand-held tester menus: DIAGNOSIS, ENHANCED OBD II, ACTIVE TEST and EVAP VSV.
    4. Touch the EVAP VSV port to check the vacuum.

    HINT:

    The EVAP VSV can be tested with the EVAP Test Equipment (go to step  40).

    Fig 39: Checking Normal Functioning Of EVAP VSV
    G02937891Courtesy of © TOYOTA, LICENSE AGREEMENT TMS1002

    Result 

    Fig 40: EVAP VSP Vacuum Check Result Table
    G02937892Courtesy of © TOYOTA, LICENSE AGREEMENT TMS1002

    NG: Go to step   33 

    OK: GO TO NEXT STEP 

  32. CHECK PURGE LINE (EVAP VSV - THROTTLE BODY) 
    1. Check that the vacuum hoses are connected correctly.
    2. Check that the vacuum hoses are not loose or disconnected.
    3. Check the vacuum hoses and tubes for cracks, holes, damage, or blockage.
      Fig 41: Checking Vacuum Hose Connection
      G02937893Courtesy of © TOYOTA, LICENSE AGREEMENT TMS1002

    NG: REPLACE PURGE HOSE 

    OK: REPLACE EVAP VSV 

  33. INSPECT EVAP VSV 
    1. Turn the ignition switch OFF.
    2. Disconnect the EVAP VSV connector.
    3. Measure the resistance of the EVAP VSV.

    Standard 

    TERMINALS SPECIFIED CONDITION

    Tester Connection Specified Condition
    Between terminals 26 to 30° at 20°C (68°F)
    Each terminal - Body ground 10 kΩ or more
    Fig 42: Measuring Resistance Of EVAP - VSV
    G02937894Courtesy of © TOYOTA, LICENSE AGREEMENT TMS1002

    NG: REPLACE EVAP VSV 

    OK: GO TO NEXT STEP 

  34. INSPECT EVAP VSV 
    1. Remove the EVAP VSV.
    2. Apply air to the EVAP VSV using an air gun, check the airflow.
      Fig 43: Applying Air To EVAP VSV Using An Air Gun For Checking Air Flow When EVAP VSV Off
      G02937895Courtesy of © TOYOTA, LICENSE AGREEMENT TMS1002
    3. Apply battery positive voltage across the terminals.
    4. Apply air to the EVAP VSV using an air gun, check the airflow.
      Fig 44: Checking Air - Flow When EVAP VSV On
      G02937896Courtesy of © TOYOTA, LICENSE AGREEMENT TMS1002

    Result 

    Fig 45: EVAP VSV Operation Check Result Table
    G02937897Courtesy of © TOYOTA, LICENSE AGREEMENT TMS1002

    NG: REPLACE EVAP VSV 

    OK: GO TO NEXT STEP 

  35. CHECK WIRE HARNESS AND CONNECTOR (EVAP VSV - POWER SOURCE) 
    1. Turn the ignition switch ON.
    2. Measure the voltage between the terminal 1 of the wire harness side and body ground.
      Fig 46: Identifying Wire Harness Side Connector Of EVAP VSV
      G02937898Courtesy of © TOYOTA, LICENSE AGREEMENT TMS1002

    Result 

    VOLTAGE AND CONCLUSION

    Voltage Conclusion Proceed to
    Battery voltage Wire harness (EVAP VSV - Power source) is OK. OK
    0 to 3V Wire harness (EVAP VSV - Power source) is short circuit. NG

    NG: REPAIR OR REPLACE HARNESS AND CONNECTOR 

    OK: GO TO NEXT STEP 

  36. CHECK WIRE HARNESS AND CONNECTOR (EVAP VSV - ECM) 
    1. Turn the ignition switch OFF.
    2. Disconnect the E8 ECM connector.
    3. Turn the ignition switch ON.
    4. Measure the voltage between the terminal 34 of the wire harness side and body ground.
      Fig 47: Disconnecting E8 ECM Connector
      G02937899Courtesy of © TOYOTA, LICENSE AGREEMENT TMS1002

    Result 

    BATTERY VOLTAGE RESULT

    Voltage Conclusion Proceed to
    Battery voltage Wire harness (EVAP VSV - ECM) is OK. OK
    0 to 3V Wire harness (EVAP VSV - ECM) is short circuit. NG

    NG: REPAIR OR REPLACE HARNESS AND CONNECTOR 

    OK: CHECK AND REPLACE ECM 

  37. CHECK FUEL TANK CAP 
    1. Connect the fuel tank cap to the gas cap adaptor.
    2. Connect the pressure hose from the pump to the gas cap adaptor.
    3. Plug the gas cap adaptor port.
    4. Turn the pump ON and pressurize the gas cap adaptor by 24 - 28 mmHg. If the pressure does not reach to 24 mmHg within 45 seconds, stop the pump. The fuel tank cap is malfunctioning.
    5. Turn the pump OFF and seal the pressure line to maintain the pressure.
    6. Measure the pressure change for 2 minutes. If the pressure drops to lower than 15 mmHg, the fuel tank cap is malfunctioning.

      Standard: The fuel tank cap keeps the pressure that is 15 mmHg or higher. 

      NG: REPLACE FUEL TANK CAP 

      OK: GO TO NEXT STEP 

  38. CHECK LEAK 
    NOTE: DO NOT apply the EVAP system to the pressure that is higher than 35 mmHg. The EVAP system will be damaged.
    1. Connect the pressure line from the pump to the EVAP service port.
    2. Turn the ignition switch ON but the engine is not running.
    3. Turn the CCV (vent valve) is ON (close) using the hand-held tester. Select the hand-held tester menus: DIAGNOSIS, ENHANCED OBD II, ACTIVE TEST and CAN CTRL VSV.
    4. Turn the pump ON and pressurize the EVAP system by 24 - 28 mmHg.
    5. Turn the pump OFF and seal the pressure line to maintain the pressure. If the pressure does not reach to 24 mmHg within 45 seconds, stop the pump. A leakage is in the EVAP system. If the system has a small leak, a whistling sound may be heard.
    6. Measure the pressure change for 2 minutes. If the pressure drops to lower than 15 mmHg, a leakage is in the EVAP system.

    Standard: The EVAP system keeps the pressure that is 15 mmHg or higher. 

    NG: Go to step 38 

    OK: NO LEAKAGE IN EVAP SYSTEM 

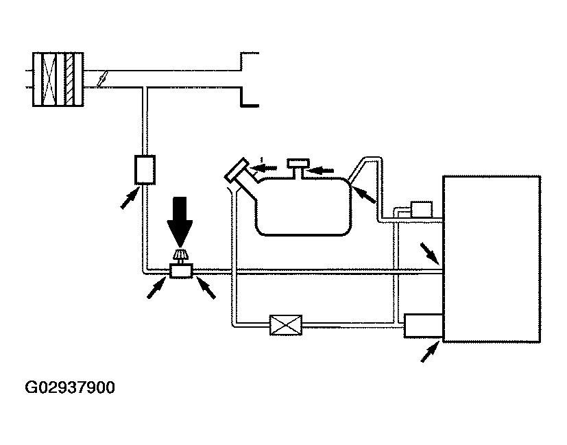
  39. LOOK FOR LEAK POINT 
    1. Apply the soapy water on suspected components.
    2. Turn the CCV (vent valve) is ON (close) using the hand held tester. Select the hand-held tester menus: DIAGNOSIS, ENHANCED OBD II, ACTIVE TEST and CAN CTRL VSV.
    3. Turn the pump ON and pressurize the EVAP system by 24 - 28 mmHg.
    4. Turn the pump OFF and seal the pressure line to maintain the pressure. If the pressure does not reach to 24 mmHg within 45 seconds, stop the pump.
    5. Check bubbles to find the leak points:
      • EVAP service port
      • Canister
      • Hose connections/Lines
      • Fuel cap
      • Fuel filler neck
      • Purge line
      • EVAP VSV
      • CCV (vent valve)
      • Fuel pump sending unit
    6. Repair or replace the leak component.
    7. Perform the EVAP system check to confirm no leak.
      Fig 48: Identifying Leak Points Of EVAP System
      G02937900Courtesy of © TOYOTA, LICENSE AGREEMENT TMS1002

    NEXT: Go to step   4 

  40. CHECK EVAP VSV 
    1. Connect the vacuum gauge to the EVAP service port.
    2. Start the engine.
    3. Switch the EVAP VSV using the hand-held tester. Select the hand-held tester menus: DIAGNOSIS, ENHANCED OBD II, ACTIVE TEST and EVAP VSV.
    4. Check the vacuum when switching the EVAP VSV. If the vacuum gauge indicates negative value when the EVAP VSV is ON, the EVAP VSV is functioning normally.

    OK: 

    The vacuum gauge indicates negative value when the EVAP VSV is ON. 

    NG: Go to step   32 

    Fig 49: Identifying Vacuum Gauge
    G02937901Courtesy of © TOYOTA, LICENSE AGREEMENT TMS1002

    OK: Go to step   18 

  41. CHECK MONITOR STATUS AND DTC 
    1. Clear DTCs.
    2. Perform a drive pattern test (see READINESS MONITOR DRIVE PATTERN  ).
    3. Check that the monitor result is PASS.
    4. Confirm no pending DTC.

    NEXT: REPAIR IS COMPLETE