lemon-mirror:
Home >> Lexus >> 2006 >> RX 330 FWD >> Repair and Diagnosis >> Engine Performance >> Engine Control System (3MZ-FE) >> SFI System >> EVAP System >> Inspection Procedure

Inspection Procedure

HINT:

Read freeze frame data. The ECM records vehicle and driving condition information as freeze frame data the moment a DTC is stored. When troubleshooting, freeze frame data can help determine if the vehicle was running or stopped, if the engine was warmed up or not, if the air-fuel ratio was lean or rich, and other data from the time the malfunction occurred.

  1. CHECK OTHER DTC OUTPUT (IN ADDITION TO DTC P041, P0442, P0446 AND/OR P0456) 

    Result 

    OTHER DTC OUTPUT (IN ADDITION TO DTC P041, P0442, P0446 AND/OR P0456)

    Display (DTC output) Proceed to
    Only P0441, P0442, P0446 and /or P0456 are output A
    P0451, P0452 and P453 are output B

    HINT:

    If any other DTCs besides P0441, P0442, P0446 and/or P0456 are output, perform the troubleshooting for those DTCs first (reference: P0451, P0452, P0453 are vapor pressure sensor malfunctions).

    B : GO TO RELEVANT  DIAGNOSTIC TROUBLE CODE CHART  

    A : Go to next step 

  2. CHECK CURRENT AND PENDING DTC 
    1. Check current DTCs. Select the intelligent tester menus: DIAGNOSIS, ENHANCED OBDII, DTC INFO and CURRENT DTCS.
    2. Check pending DTCs. Select the intelligent tester menus: DIAGNOSIS, ENHANCED OBDII, DTC INFO and PENDING DTCS.

    Result 

    CURRENT AND PENDING DTC

    Current DTC Pending DTC Conclusion
    Set Set System has been malfunctioning. Problem can be specified.
    Set - System was malfunctioning in previous driving cycle. Problem may be specified.
    - Set System is malfunctioning. This is intermittent problem and caused by fuel tank cap loosening. Otherwise, this problem may be difficult to eliminate.

    HINT:

    • The ECM stores the current DTC and illuminates the MIL when an emission-related component is malfunctioning in 2 consecutive driving cycles (2 trips). The MIL is turned OFF, if the component is functioning normally in 3 consecutive driving cycles. The ECM erases the current DTC, if the component is functioning normally in 40 consecutive driving cycles.
    • The ECM stores the pending DTC when If the component is malfunctioning in present driving cycle (1 trip).
    • The ECM erases the pending DTC, if the component is functioning normally in the next driving cycle.

    NEXT 

  3. PREDICT POSSIBLE MALFUNCTION AREA (MANUAL OPERATION) 
    1. Predict possible malfunction area using the matrix below.

    EVAP DTC Matrix 

    EVAP DTC MATRIX

    Malfunction Area DTCs
    EVAP VSV stuck closed P0441, P0466, P0455
    EVAP VSV stuck open P0441
    EVAP small leak (0.04 inch) P0442
    CCV stuck closed P0446
    CCV stuck open P0441, P0446, P0455
    FTP sensor malfunction P0451
    FTP sensor low output P0452
    FTP sensor high output P0453
    Gross leak P0441, P0455
    EVAP small leak (0.02 inch) P0442, P0456
    SUSPECTED MALFUNCTION AREA

    DTCs Suspected Malfunction Area
    P0441 only EVAP VSV stuck open
    P0446 only CCV (vent valve) stuck open
    P0442 and/or P0456 Small leak

    NEXT 

  4. PERFORM EVAP SYSTEM CHECK 
    NOTE: The EVAP system check can be used for confirmation after the EVAP system repair. Check DTCs after performing the EVAP system check. If no pending DTC is set, the EVAP system is functioning normally and the repair is complete.
    1. Select the "mmHg" unit. Select the intelligent tester menus: DIAGNOSIS, SETUP, UNIT CONVERSION and VAPOR PRESS.
    2. Allow the engine to idle.
    3. Perform the EVAP system check to find a malfunction area. Select the intelligent tester menus: DIAGNOSIS, ENHANCED OBD ll, SYSTEM CHECK and LEV ll SYS CHECK.
    4. Read NOTICE and press ENTER.
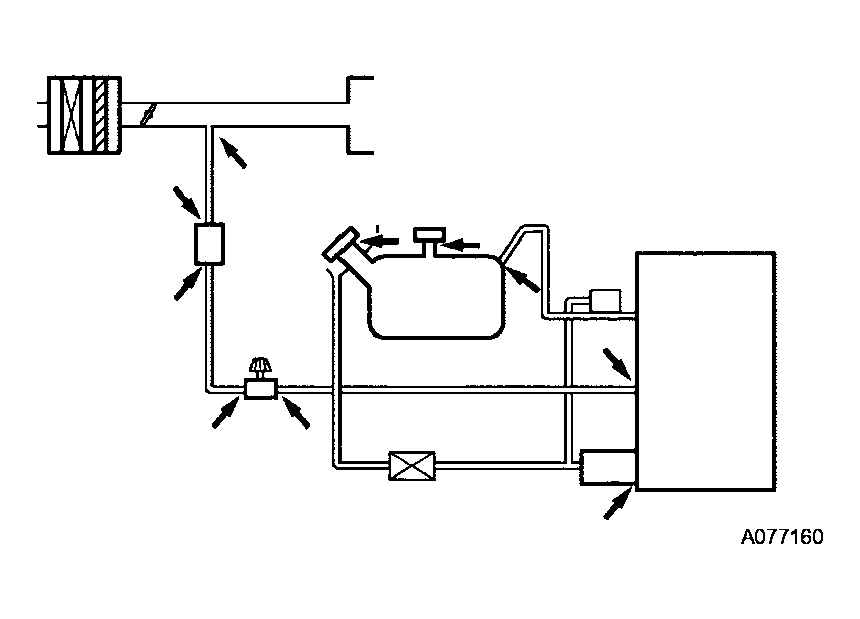
    Fig 1: Identifying LEV II EVAP System Check Diagram
    G04087406Courtesy of © TOYOTA, LICENSE AGREEMENT TMS1002

    HINT:

    The EVAP system check is the most accurate when the following conditions are being set:

    • Atmospheric pressure is 762 mmHg (sea level).
    • The engine coolant and intake air temperatures are 4 to 35°C (40 to 90°F).
    • The fuel tank level is 1/4 to 3/4.

    NEXT 

  5. PERFORM EVAP SYSTEM CHECK STEP 1 (INITIALIZE SYSTEM) 
    1. Perform step  1.
      Fig 2: EVAP System Check Step 1 (Initialize System) Display
      G04087407Courtesy of © TOYOTA, LICENSE AGREEMENT TMS1002
    2. Wait for 30 seconds.
    Fig 3: Displaying Initialize System
    G04087408Courtesy of © TOYOTA, LICENSE AGREEMENT TMS1002

    NEXT 

  6. PERFORM EVAP SYSTEM CHECK STEP 2 (CHECK FOR CCV) 
    1. Press RIGHT to go to step  2.
      Fig 4: EVAP System Check Step 2 (Check For CCV) Display
      G04087409Courtesy of © TOYOTA, LICENSE AGREEMENT TMS1002
    2. Wait for 30 seconds and check VAPOR PRESS (EVAP pressure).

    Result 

    EVAP SYSTEM CHECK STEP 2 (CHECK FOR CCV)

    VAPOR PRESS Conclusion Proceed to
    Higher than 752 mmHg-a (-10 mmHgg) Trouble area has not been found yet. OK
    Lower than 752 mmHg-a (-10 mmHgg) Following problems are suspected:
    • Air inlet line restriction
    • Canister filter restriction
    • CCV (vent valve) stuck closed
    NG
    Fig 5: Displaying Check For CCV
    G04087410Courtesy of © TOYOTA, LICENSE AGREEMENT TMS1002

    HINT:

    In this step, the intake manifold pressure (vacuum) is applied to the EVAP system. However, the fuel tank pressure does not drop due to the CCV (vent valve) open.

    NG : GO TO STEP   11 

    OK : Go to next step 

  7. PERFORM EVAP SYSTEM CHECK STEP 3 (INITIALIZE SYSTEM) 
    1. Press RIGHT to go to step  3.
      Fig 6: EVAP System Check Step 3 (Initialize System) Display
      G04087411Courtesy of © TOYOTA, LICENSE AGREEMENT TMS1002
    2. Wait for 30 seconds.
    Fig 7: Displaying Initialize System
    G04087412Courtesy of © TOYOTA, LICENSE AGREEMENT TMS1002

    NEXT 

  8. PERFORM EVAP SYSTEM CHECK STEP 4 (CHECK FOR EVAP VSV STUCK OPEN) 
    1. Press RIGHT to go to step  4.
      Fig 8: EVAP System Check Step 4 (Check For EVAP VSV Stuck Open) Display
      G04087413Courtesy of © TOYOTA, LICENSE AGREEMENT TMS1002
    2. Wait for 15 seconds and check VAPOR PRESS (EVAP pressure).

    Result 

    CHECK FOR EVAP VSV STUCK OPEN

    VAPOR PRESS Conclusion Proceed to
    Higher than 758 mmHg-a (-4 mmHg-g) Trouble area has not been found yet OK
    Lower than 758 mmHg-a (-4 mmHg-g) EVAP VSV stuck open NG
    Fig 9: Checking EVAP VSV Stuck Open
    G04087414Courtesy of © TOYOTA, LICENSE AGREEMENT TMS1002

    NG : GO TO STEP   14 

    OK : Go to next step 

  9. PERFORM EVAP SYSTEM CHECK STEP 5 (APPLYING VACUUM) 
    1. Press RIGHT to go to step  5.
      Fig 10: EVAP System Check Step 5 (Applying Vacuum) Display
      G04087415Courtesy of © TOYOTA, LICENSE AGREEMENT TMS1002
    2. Wait for 30 seconds and check VAPOR PRESS (EVAP pressure).
    Fig 11: Displaying Levi System Check
    G04087416Courtesy of © TOYOTA, LICENSE AGREEMENT TMS1002
    • If the pressure is lower than 740 mmHg-a (-22 mmHgg), the intelligent tester closes the EVAP VSV.
      Fig 12: Displaying - Applying Vacuum
      G04087417Courtesy of © TOYOTA, LICENSE AGREEMENT TMS1002
    • If the pressure is lower than 735 mmHg-a (-27 mmHgg), the intelligent tester cancels the EVAP system check.
    Fig 13: Displaying - Error
    G04087418Courtesy of © TOYOTA, LICENSE AGREEMENT TMS1002

    Result 

    APPLYING VACUUM

    VAPOR PRESS Conclusion Proceed to
    Lower than 748 mmHg-a (-14 mmHgg) Trouble area has not been found yet. A
    756 to 768 mmHg-a (-6 to 6 mmHg-g) Following problems are suspected:
    • Fuel tank cap loosening
    • Gross leak
    • ?EVAP VSV stuck closed
    • CCV (vent valve) stuck open
    • Purge line blockage between fuel tank and canister
    B
    748 to 755 mmHg-a (-14 to -7 mmHg-g) Medium leak C

    B : GO TO STEP   15 

    C : GO TO STEP   18 

    A : Go to next step 

  10. PERFORM EVAP SYSTEM CHECK STEP 6 (LEAK CHECK FOR EVAP SYSTEM) 
    1. Press RIGHT to go to step 6 when the VAPOR PRESS (EVAP pressure) is lower than 742 mmHg-a (-20 mmHg-g).
      Fig 14: EVAP System Check Step 6 (Leak Check For EVAP System) Display
      G04087419Courtesy of © TOYOTA, LICENSE AGREEMENT TMS1002
    2. Wait for 300 seconds and check VAPOR PRESS (EVAP pressure).

    Result 

    LEAK CHECK FOR EVAP SYSTEM

    VAPOR PRESS Conclusion Proceed to
    Less than 758 mmHg-a (-4 mmHg-g) EVAP system is functioning normally OK
    Higher than 758 mmHg-a (-4 mmHg-g) Leakage NG
    Fig 15: Displaying EVAP System
    G04087420Courtesy of © TOYOTA, LICENSE AGREEMENT TMS1002

    NG : GO TO STEP   18 

    OK : GO TO STEP   40 

  11. CHECK CCV 
    1. Turn the ignition switch OFF.
    2. Turn the ignition switch ON.
    3. Switch the CCV (vent valve) using the intelligent tester. Select the intelligent tester menus: DIAGNOSIS, ENHANCED OBD ll, ACTIVE TEST and CAN CTRL VSV.
    4. Touch the CCV and check the operation during switching the CCV.

    Result 

    CCV

    CCV (Vent Valve) Conclusion Proceed to
    CCV is operated CCV is functioning normally. OK
    CCV is not operated CCV is malfunctioning. NG
    Fig 16: Checking CCV
    G04087421Courtesy of © TOYOTA, LICENSE AGREEMENT TMS1002

    NG : GO TO STEP   25 

    OK : Go to next step 

  12. CHECK AIR INLET LINE RESTRICTION 
    1. Disconnect the air inlet line from the CCV.
    2. Remove and reinstall the fuel tank cap to release the fuel tank pressure.
    3. Allow the engine to idle.
      Fig 17: Checking Air Inlet Line Restriction
      G04087422Courtesy of © TOYOTA, LICENSE AGREEMENT TMS1002
    4. Perform step 2 of the EVAP system check.
    5. Wait for 30 seconds and check VAPOR PRESS (EVAP pressure).

      Result 

      AIR INLET LINE RESTRICTION

      VAPOR PRESS Conclusion Proceed to
      Higher than 752 mmHg-a (-10 mmHg-g) Blockage in canister filter A
      Lower than 752 mmHg-a (-10 mmHg-g) Blockage in CCV (vent valve) or canister B
      Fig 18: Displaying - Check For CCV
      G04087423Courtesy of © TOYOTA, LICENSE AGREEMENT TMS1002
    6. Reconnect the air inlet line to the CCV.

    B : GO TO STEP   13 

    A : REPLACE CANISTER FILTER 

  13. CHECK CANISTER BLOCKAGE 
    1. Turn the ignition switch OFF.
    2. Remove the CCV from the canister.
    3. Remove and reinstall the fuel tank cap to release the fuel tank pressure.
    4. Allow the engine to idle.
      Fig 19: Checking Canister Blockage
      G04087424Courtesy of © TOYOTA, LICENSE AGREEMENT TMS1002
    5. Perform step 2 of the EVAP system check.
    6. Wait for 30 seconds and check VAPOR PRESS (EVAP pressure).

    Result 

    CANISTER BLOCKAGE

    VAPOR PRESS Conclusion Proceed to
    Higher than 752 mmHg-a (-10 mmHg-g) CCV (vent valve) stuck closed A
    Lower than 752 mmHg-a (-10 mmHg-g) Blockage in canister B
    Fig 20: Displaying - Check For CCV
    G04087425Courtesy of © TOYOTA, LICENSE AGREEMENT TMS1002

    B : CHECK AND REPLACE CHARCOAL CANISTER ASSEMBLY 

    A : REPLACE CCV (VENT VALVE) 

  14. CHECK EVAP VSV (FOR EVAP VSV STUCK OPEN) 
    1. Turn the ignition switch OFF.
    2. Disconnect the purge hose of the canister from the EVAP VSV.
    3. Disconnect the EVAP VSV connector.
    4. Allow the engine to idle.
    5. Touch the EVAP VSV port to check the vacuum.

    Result 

    EVAP VSV (FOR EVAP VSV STUCK OPEN)

    EVAP VSV Conclusion Proceed to
    Vacuum is applied. EVAP VSV is malfunctioning. A
    No vacuum is applied. Electrical circuit of EVAP VSV is malfunctioning. B
    Fig 21: Checking EVAP VSV (For EVAP VSV Stuck Open)
    G04087426Courtesy of © TOYOTA, LICENSE AGREEMENT TMS1002

    B : GO TO STEP   29 

    A : REPLACE EVAP VSV 

  15. CHECK FUEL TANK CAP ASSEMBLY 
    1. Remove the fuel tank cap and reinstall it until a few click sound is heard.
    2. Clear the DTCs.
    3. Check pending DTCs after the EVAP system check if no pending DTC is set, the DTC(s) was set due to the fuel cap loosening.

    If necessary, replace the fuel cap.

    NG : GO TO STEP   16 

    OK : REPAIR IS COMPLETE 

  16. CHECK EVAP VSV (FOR EVAP VSV STUCK CLOSED) 
    1. Disconnect the purge hose of the canister from the EVAP VSV.
    2. Allow the engine to idle.
    3. Switch the EVAP VSV using the intelligent tester. Select the intelligent tester menus: DIAGNOSIS, ENHANCED OBD ll, ACTIVE TEST and EVAP VSV.
    4. Touch the EVAP VSV port to check the vacuum.

    Result 

    EVAP VSV (FOR EVAP VSV STUCK CLOSED)

    EVAP VSV Conclusion Proceed to
    Vacuum is applied when EVAP VSV is ON.
    No vacuum is applied when EVAP VSV is OFF.
    EVAP VSV is functioning normally. OK
    No vacuum is applied when EVAP VSV is ON. Electrical circuit of EVAP VSV is malfunctioning. NG
    Fig 22: Checking EVAP VSV (For EVAP VSV Stuck Closed)
    G04087427Courtesy of © TOYOTA, LICENSE AGREEMENT TMS1002

    HINT:

    The EVAP VSV can be tested with the EVAP Test Equipment (go to step  39).

    NG : GO TO STEP   31 

    OK : Go to next step 

  17. CHECK CCV (FOR CCV STUCK OPEN) 
    1. Turn the ignition switch OFF.
    2. Remove the CCV (vent valve) and plug the canister.
    3. Allow the engine to idle.
      Fig 23: Checking CCV (For CCV Stuck Open)
      G04087428Courtesy of © TOYOTA, LICENSE AGREEMENT TMS1002
    4. Apply vacuum to the EVAP system with the EVAP system check. Perform step 5 "Applying Vacuum".
    5. Wait for 30 seconds and check the VAPOR PRESS (EVAP pressure).

    Result 

    CCV (FOR CCV STUCK OPEN)

    VAPOR PRESS Conclusion Proceed to
    Lower than 747 mmHg-a (-15 mmHg-g) CCV (vent valve) stuck open A
    Higher than 747 mmHg-a (-15 mmHg-g) Blockage in canister Blockage in purge line (Fuel tank - Canister)
    Blockage in purge line (Fuel tank - EVAP VSV)
    B
    Fig 24: Displaying - Applying Vacuum
    G04087429Courtesy of © TOYOTA, LICENSE AGREEMENT TMS1002

    B : GO TO STEP   20 

    A : GO TO STEP   24 

  18. CHECK FUEL TANK CAP ASSEMBLY 
    1. Remove the fuel tank cap and reinstall it until a few click sound is heard.
    2. Clear the DTCs.
    3. Check pending DTCs after the EVAP system check If no pending DTC is set, the DTC(s) was set due to the fuel cap loosening.

    If necessary, replace the fuel cap.

    NG : GO TO STEP   19 

    OK : REPAIR IS COMPLETE 

  19. CHECK FILLER NECK DAMAGE 
    1. Remove the fuel tank cap.
    2. Visually inspect the filler neck for damage.
    3. Reinstall the fuel tank cap.

    HINT:

    A leak point may be found with the EVAP Test Equipment (go to step  36).

    Fig 25: Checking Filler Neck Damage
    G04087430Courtesy of © TOYOTA, LICENSE AGREEMENT TMS1002

    NG : REPLACE FUEL TANK INLET PIPE 

    OK : Go to next step 

  20. CHECK PURGE LINE (CANISTER - FUEL TANK) 
    1. Check that the pipes and hoses are connected correctly.
    2. Check that the pipes and hoses are not loose or disconnected.
    3. Check the pipes and hoses have no damage or blockage.
    4. Fig 26: Checking Purge Line (Canister - Fuel Tank)
      G04087431Courtesy of © TOYOTA, LICENSE AGREEMENT TMS1002

    NG : REPLACE PURGE HOSE 

    OK : Go to next step 

  21. CHECK PURGE LINE (CANISTER - EVAP VSV) 
    1. Check that the pipes and hoses are connected correctly.
    2. Check that the pipes and hoses are not loose or disconnected.
    3. Check the pipes and hoses have no damage or blockage.

    B : REPLACE PURGE HOSE 

    OK : Go to next step 

  22. INSPECT CANISTER 

    NG : REPLACE CANISTER 

    OK : Go to next step 

  23. INSPECT FUEL TANK ASSEMBLY 
    1. Check that the fuel tank has no damage.
    2. Check the fuel inlet pipe has no damage.
    3. Check leakage from the fuel pump unit

    NG : REPAIR OR REPLACE DEFECTIVE OR DAMAGED PARTS 

    OK : GO TO STEP   40 

  24. CHECK CCV 
    1. Stop the engine and turn the ignition switch ON.
    2. Switch the CCV (vent valve) using the intelligent tester.
    3. Select the intelligent tester menus: DIAGNOSIS, ENHANCED OBD ll, ACTIVE TEST and CAN CTRL VSV.
    4. Touch the CCV and check the operation during switching the CCV.

    Result 

    CCV

    CCV (Vent Valve) Conclusion Proceed to
    CCV is operated Electrical circuit of CCV is functioning normally. A
    CCV is not operated Electrical circuit of CCV is malfunctioning. B
    Fig 27: Checking CCV
    G04087432Courtesy of © TOYOTA, LICENSE AGREEMENT TMS1002

    B : GO TO STEP   26 

    A: Go to next step 

  25. CHECK CCV 
    1. Turn the ignition switch OFF.
    2. Remove the CCV (vent valve).
    3. Connect the CCV connector.
    4. Turn the ignition switch ON.
    5. Switch the CCV using the intelligent tester. Select the intelligent tester menus: DIAGNOSIS, ENHANCED OBD ll, ACTIVE TEST and CAN CTRL VSV.
    6. Apply air to the CCV port using an air gun and check the airflow.

    Result 

    CCV

    CCV (Vent Valve) Conclusion Proceed to
    Air flows when CCV is OFF (open). Air does not flows when CCV is ON (close). CCV is functioning normally. Electrical circuit of CCV is malfunctioning. A
    Air flows when CCV is ON (close). Air does not flows when CCV is OFF (open). CCV is malfunctioning. B
    Fig 28: Checking CCV Is Functioning Normally
    G04087433Courtesy of © TOYOTA, LICENSE AGREEMENT TMS1002

    B : REPLACE CCV 

    A : Go to next step 

  26. CHECK WIRE HARNESS (CCV - POWER SOURCE) 
    1. Turn the ignition switch OFF.
    2. Disconnect the CCV connector.
    3. Turn the ignition switch ON.
    4. Measure the voltage between terminal 2 of the wire harness side connector and body ground.

    Result 

    CCV - POWER SOURCE

    Voltage Conclusion Proceed to
    Battery voltage Wire harness (CCV - Power source) is OK. OK
    0 to 3 V Wire harness (CCV - Power source) is short circuit. NG
    Fig 29: Checking Wire Harness (CCV - Power Source)
    G04087434Courtesy of © TOYOTA, LICENSE AGREEMENT TMS1002

    B : REPAIR OR REPLACE HARNESS OR CONNECTOR 

    OK : Go to next step 

  27. CHECK WIRE HARNESS AND CONNECTOR (CCV - ECM) 
    1. Switch the CCV using the intelligent tester. Select the intelligent tester menus: DIAGNOSIS, ENHANCED OBD ll, ACTIVE TEST and CAN CTRL VSV.
    2. Measure the resistance between terminal 1 of the wire harness side connector and body ground.

    Result 

    CCV - ECM

    Resistance Conclusion Proceed to
    More than 10 kΩ when CCV is OFF. Less than 10 Ω when CCV is ON. ECM and wire harness (CCV - ECM) are OK.
    CCV is malfunctioning.
    OK
    No change Either of wire harness (CCV - ECM) or ECM is malfunctioning. NG
    Fig 30: Checking Wire Harness And Connector (CCV - ECM)
    G04087435Courtesy of © TOYOTA, LICENSE AGREEMENT TMS1002

    NG : GO TO STEP   28 

    OK : REPLACE CCV 

  28. CHECK HARNESS AND CONNECTOR (CCV - ECM) 
    1. Check the wire harness between the ECM and CCV.
    2. Turn the ignition switch OFF.
    3. Disconnect the E8 ECM connector.
    4. Measure the resistance between the CCV and ECM wire harness side connectors.

    Standard resistance 

    CCV - ECM

    Tester Connection Specified Condition
    1 (CCV) - E8-27 (ECM) Less than 10 Ω
    1 (CCV) - Body ground More than 10 kΩ
    Fig 31: Checking Harness And Connector (CCV - ECM)
    G04087436Courtesy of © TOYOTA, LICENSE AGREEMENT TMS1002

    NG : REPAIR OR REPLACE HARNESS OR CONNECTOR 

    OK : REPLACE ECM 

  29. CHECK EVAP VSV 
    1. Turn the ignition switch ON.
    2. Switch the EVAP VSV using the intelligent tester. Select the intelligent tester menus: DIAGNOSIS, ENHANCED OBD ll, ACTIVE TEST and EVAP VSV (Alone).
    3. Listen to click sounds to check the EVAP VSV operation.

    Result 

    EVAP VSV

    EVAP VSV Conclusion Proceed to
    Operated Electrical circuit of EVAP VSV is functioning normally. OK
    Not operated Electrical circuit of EVAP VSV is malfunctioning. NG
    Fig 32: Checking EVAP VSV
    G04087437Courtesy of © TOYOTA, LICENSE AGREEMENT TMS1002

    NG : GO TO STEP   32 

    OK : Go to next step 

  30. CHECK EVAP VSV 
    1. Disconnect the purge hose of the canister from the EVAP VSV.
    2. Start the engine.
    3. Switch the EVAP VSV using the intelligent tester. Select the intelligent tester menus: DIAGNOSIS, ENHANCED OBD ll, ACTIVE TEST and EVAP VSV.
    4. Touch the EVAP VSV port to check the vacuum.

    Result 

    EVAP VSV

    EVAP VSV Conclusion Proceed to
    Vacuum is applied when EVAP VSV is ON. No vacuum is applied when EVAP VSV is OFF. EVAP VSV is functioning normally. OK
    No vacuum is applied when EVAP VSV is ON. Electrical circuit of EVAP VSV is malfunctioning. NG
    Fig 33: Checking EVAP VSV
    G04087438Courtesy of © TOYOTA, LICENSE AGREEMENT TMS1002

    HINT:

    The EVAP VSV can be tested with the EVAP Test Equipment (go to step  39).

    NG : GO TO STEP   32 

    OK : Go to next step 

  31. CHECK PURGE LINE (EVAP VSV - THROTTLE BODY) 
    1. Check that the vacuum hoses are connected correctly.
    2. Check that the vacuum hoses are not loose or disconnected.
    3. Check the vacuum hoses and tubes for cracks, holes, damage, or blockage.
    4. Fig 34: Checking Purge Line (EVAP VSV - Throttle Body)
      G04087439Courtesy of © TOYOTA, LICENSE AGREEMENT TMS1002

    NG : REPLACE PURGE HOSE 

    OK : REPLACE EVAP VSV 

  32. INSPECT EVAP VSV 
    1. Turn the ignition switch OFF.
    2. Disconnect the EVAP VSV connector.
    3. Measure the resistance of the EVAP VSV.

    Standard resistance 

    EVAP VSV

    Tester Connection Specified Condition
    Between terminals 26 to 30 Ω at 20°C (68°F)
    Each terminal - Body ground 10 kΩ or more
    Fig 35: Inspecting EVAP VSV
    G04087440Courtesy of © TOYOTA, LICENSE AGREEMENT TMS1002

    NG : REPLACE EVAP VSV 

    OK : Go to next step 

  33. INSPECT EVAP VSV 
    1. Remove the EVAP VSV.
    2. Apply air to the EVAP VSV using an air gun, check the airflow.
      Fig 36: Applying Air To EVAP VSV (No Flow)
      G04087441Courtesy of © TOYOTA, LICENSE AGREEMENT TMS1002
    3. Apply battery positive voltage across the terminals.
    4. Apply air to the EVAP VSV using an air gun, check the airflow.
      Fig 37: Applying Air To EVAP VSV (Airflow)
      G04087442Courtesy of © TOYOTA, LICENSE AGREEMENT TMS1002

    Result 

    EVAP VSV

    EVAP VSV Conclusion Proceed to
    Air does not flow when EVAP VSV is OFF.
    Air flows when EVAP VSV is ON.
    EVAP VSV is functioning normally. OK
    Air flows when EVAP VSV is OFF.
    Air does not flow when EVAP VSV is ON.
    Electrical circuit of EVAP VSV is malfunctioning. NG

    NG : REPLACE EVAP VSV 

    OK : Go to next step 

  34. CHECK HARNESS AND CONNECTOR (EVAP VSV - POWER SOURCE) 
    1. Turn the ignition switch ON.
    2. Measure the voltage between the terminal 1 of the wire harness side and body ground.

    Result 

    EVAP VSV - POWER SOURCE

    Voltage Conclusion Proceed to
    Battery voltage Wire harness (EVAP VSV - Power source) is OK. OK
    0 to 3 V Wire harness (EVAP VSV - Power source) is short circuit. NG
    Fig 38: Checking Harness And Connector (EVAP VSV - Power Source)
    G04087443Courtesy of © TOYOTA, LICENSE AGREEMENT TMS1002

    NG : REPAIR OR REPLACE HARNESS OR CONNECTOR 

    OK : Go to next step 

  35. CHECK HARNESS AND CONNECTOR (EVAP VSV - ECM) 
    1. Turn the ignition switch OFF.
    2. Disconnect the E8 ECM connector.
    3. Turn the ignition switch ON.
    4. Measure the voltage between the terminal 34 of the wire harness side and body ground.

    Result 

    EVAP VSV - ECM

    Voltage Conclusion Proceed to
    Battery voltage Wire harness (EVAP VSV - ECM) is OK. OK
    0 to 3 V Wire harness (EVAP VSV - ECM) is short circuit. NG
    Fig 39: Checking Harness And Connector (EVAP VSV - ECM)
    G04087444Courtesy of © TOYOTA, LICENSE AGREEMENT TMS1002

    NG : REPAIR OR REPLACE HARNESS OR CONNECTOR 

    OK : REPLACE ECM 

  36. CHECK FUEL TANK CAP ASSEMBLY 
    1. Connect the fuel tank cap to the gas cap adaptor.
    2. Connect the pressure hose from the pump to the gas cap adaptor.
    3. Plug the gas cap adaptor port.
    4. Turn the pump ON and pressurize the gas cap adaptor by 24 - 28 mmHg. If the pressure does not reach to 24 mmHg within 45 seconds, stop the pump. The fuel tank cap is malfunctioning.
    5. Turn the pump OFF and seal the pressure line to maintain the pressure.
    6. Measure the pressure change for 2 minutes. If the pressure drops to lower than 15 mmHg, the fuel tank cap is malfunctioning.

    Standard: 

    The fuel tank cap keeps the pressure that is 15 mmHg or higher. 

    NG : REPLACE FUEL TANK CAP ASSEMBLY 

    OK : Go to next step 

  37. CHECK LEAK 
    NOTE: DO NOT apply the EVAP system to the pressure that is higher than 35 mmHg. The EVAP system will be damaged.
    1. Connect the pressure line from the pump to the EVAP service port.
    2. Turn the ignition switch ON but the engine is not running.
    3. Turn the CCV (vent valve) is ON (close) using the intelligent tester. Select the intelligent tester menus: DIAGNOSIS, ENHANCED OBD ll, ACTIVE TEST and CAN CTRL VSV.
    4. Turn the pump ON and pressurize the EVAP system by 24-28 mmHg.
    5. Turn the pump OFF and seal the pressure line to maintain the pressure. If the pressure does not reach to 24 mmHg within 45 seconds, stop the pump. A leakage is in the EVAP system. If the system has a small leak, a whistling sound may be heard.
    6. Measure the pressure change for 2 minutes. If the pressure drops to lower than 15 mmHg, a leakage is in the EVAP system.

    Standard: 

    The EVAP system keeps the pressure that is 15 mmHg or higher. 

    NG : GO TO STEP   38 

    OK : NO LEAKAGE IN EVAP SYSTEM 

  38. LOOK FOR LEAK POINT 
    1. Apply the soapy water on suspected components.
    2. Turn the CCV (vent valve) is ON (close) using the intelligent tester. Select the intelligent tester menus: DIAGNOSIS, ENHANCED OBD ll, ACTIVE TEST and CAN CTRL VSV.
    3. Turn the pump ON and pressurize the EVAP system by 24-28 mmHg.
    4. Turn the pump OFF and seal the pressure line to maintain the pressure. If the pressure does not reach to 24 mmHg within 45 seconds, stop the pump.
    5. Check bubbles to find the leak point:
      • EVAP service port
      • Canister
      • Hose connections/Lines
      • Fuel cap
      • Fuel filler neck
      • Purge line
      • EVAP VSV
      • CCV (vent valve)
      • Fuel pump sending unit
      Fig 40: Checking Leak Point
      G04087445Courtesy of © TOYOTA, LICENSE AGREEMENT TMS1002
    6. Repair or replace the leak component.
    7. Perform the EVAP system check to confirm no leak.

    NEXT : GO TO STEP  4

  39. CHECK EVAP VSV 
    1. Connect the vacuum gauge to the EVAP service port.
      1. Start the engine.
      2. Switch the EVAP VSV using the intelligent tester. Select the intelligent tester menus: DIAGNOSIS, ENHANCED OBD ll, ACTIVE TEST and EVAP VSV.
      3. Check the vacuum when switching the EVAP VSV. If the vacuum gauge indicates negative value when the EVAP VSV is ON, the EVAP VSV is functioning normally.

      OK : 

      The vacuum gauge indicates negative value when the EVAP VSV is ON. 

    Fig 41: Checking EVAP VSV
    G04087446Courtesy of © TOYOTA, LICENSE AGREEMENT TMS1002

    NG : GO TO STEP   31 

    OK : GO TO STEP   17 

  40. CHECK MONITOR STATUS AND DTC 
    1. Clear DTCs.
    2. Perform a drive pattern test (See READINESS MONITOR DRIVE PATTERN  )
    3. Check that the monitor result is PASS.
    4. Confirm no pending DTC.
    • NEXT : REPAIR IS COMPLETE