lemon-mirror:
Home >> Mazda >> 2006 >> Tribute s, FWD >> Repair and Diagnosis >> Body & Frame >> Windows >> Glass/Windows/Mirrors >> Window Control Switch Inspection

Window Control Switch Inspection

  1. Remove the window control switch. See WINDOW CONTROL SWITCH  .
  2. Inspect for continuity between the window control switch terminals using an ohmmeter.
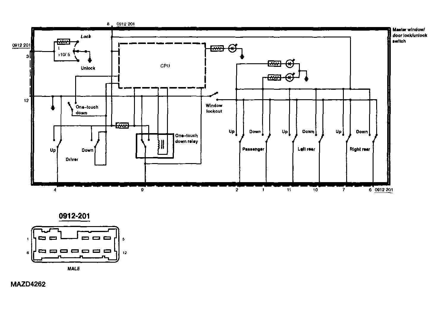
    Fig 1: Identifying Window Control Switch Diagram & Connector
    G04322699Courtesy of MAZDA MOTORS CORP.
    WINDOW CONTROL SWITCH INSPECTION CHART

    Circuit to test Connect self-powered test light or ohmmeter to terminals Move key to these positions A good switch will indicate
    Left front window circuit 8 and 4 Up Closed circuit
    12 and 4 Down Closed circuit
    4 and 9
    12 and 9
    12 and 4
    Rest Closed circuit
    Right front window circuit 8 and 2 Up Closed circuit
    8 and 1 Down Closed circuit
    1 and 2
    1 and 12
    2 and 12
    Rest Closed circuit
    Left rear window circuit 8 and 11 Up Closed circuit
    8 and 10 Down Closed circuit
    10 and 11
    10 and 12
    11 and 12
    Rest Closed circuit
    Right rear window circuit 8 and 7 Up Closed circuit
    8 and 6 Down Closed circuit
    6 and 7
    6 and 12
    7 and 12
    Rest Closed circuit
    Door lock switch 8 and 12 Lock Resistance
    Unlock Closed circuit
    Neutral Open circuit
  3. If not as specified, replace the window control switch.