lemon-mirror:
Home >> Mercedes Benz >> 1985 >> 190D Automatic >> Repair and Diagnosis >> Engine Performance >> System >> Fuel Injection System - Diesel >> Description

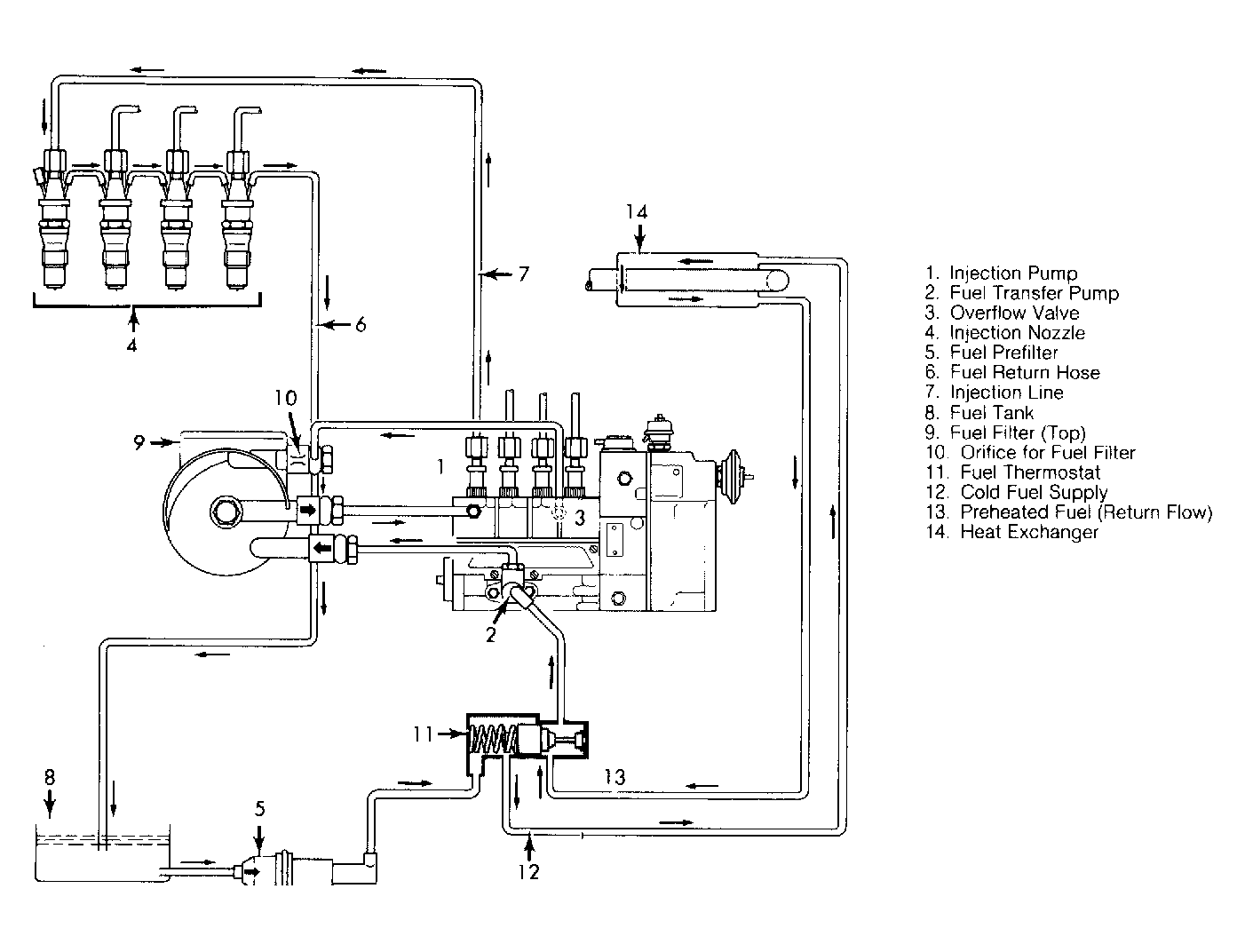
Fuel Injection System - Diesel: Description

The fuel injection system used on Mercedes 190D models includes the following components: pre-filter, main filter, fuel injection pump with mechanical governor, and injection nozzles. In addition, the injection pump is equipped with an altitude compensating device and a vacuum control shut-off unit. A glow plug system is used to assist in cold starting operation.

The 190D injection system also has the following features: lubrication of the injection pump, relief throttle in delivery valve holder, pneumatic idle speed increase, reference impulse verification (RIV), injection timing by means of adjusting device, a self-venting system, high capacity fuel pump (eliminates hand pump), injection timer mounted directly on injection shaft and a fuel heater. The fuel pump delivery has been increased and is a self-bleeding system.

Fig 1: 190D Diesel Fuel Injection Circuit Diagram
G34985