lemon-mirror:
Home >> Nissan-Datsun >> 2005 >> Quest Base >> Repair and Diagnosis >> Engine Performance >> Engine Control System >> VIAS >> Wiring Diagram

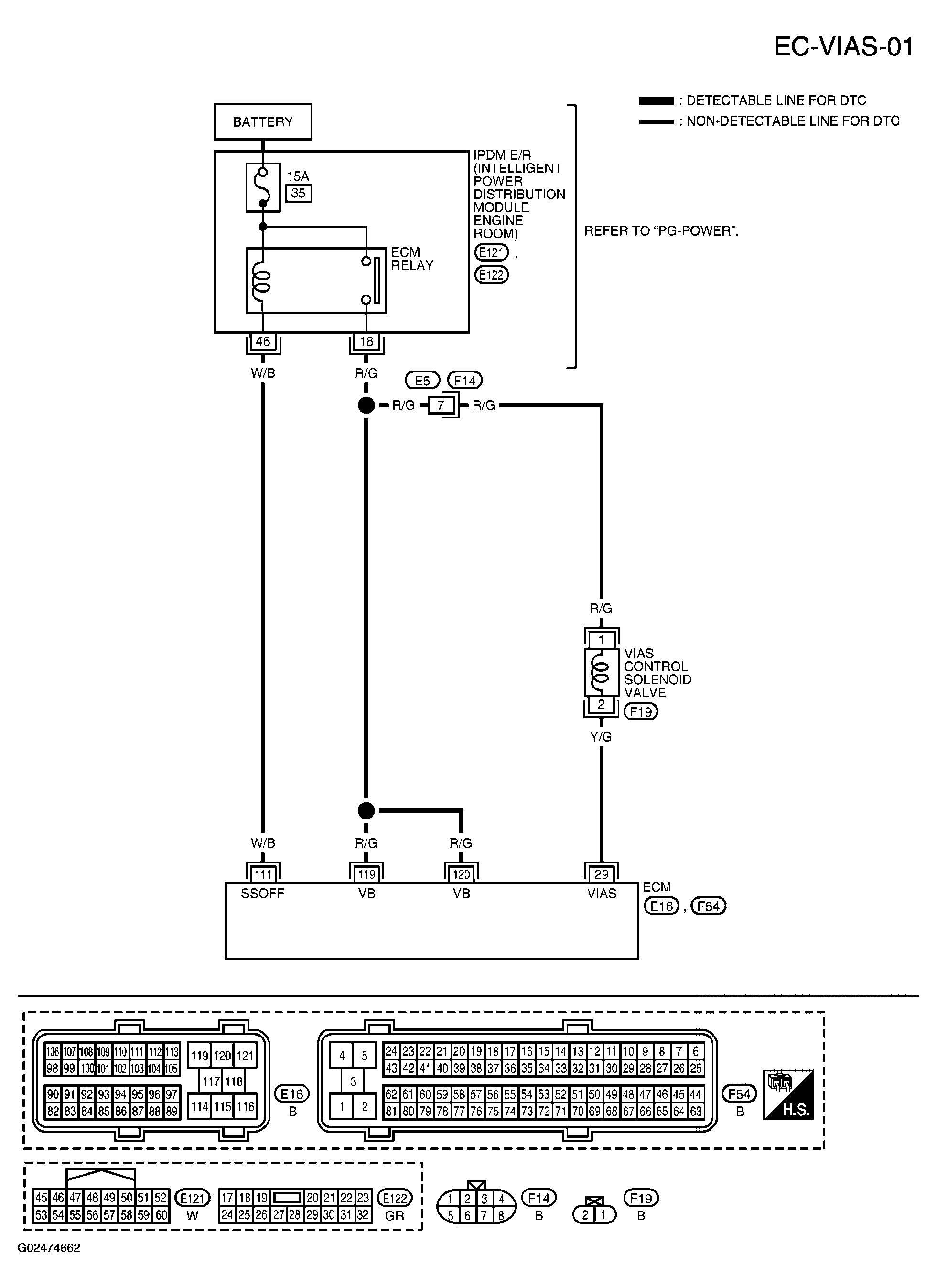
Engine Control System: VIAS: Wiring Diagram

Fig 1: Wiring Diagram - VIAS - EC-VIAS-01
G02474662Courtesy of NISSAN MOTOR CO., U.S.A.

Specification data are reference values and are measured between each terminal and ground.

CAUTION: Do not use ECM ground terminals when measuring input/output voltage. Doing so may result in damage to the ECM's transistor. Use a ground other than ECM terminals, such as the ground.
Fig 2: Terminals Reference Value Chart
G02474663Courtesy of NISSAN MOTOR CO., U.S.A.