lemon-mirror:
Home >> Pontiac >> 2009 >> G8 Base >> Repair and Diagnosis >> Engine Performance >> System >> Data Communication System >> Schematic Wiring Diagrams >> Body Control System Wiring Schematics

Body Control System Wiring Schematics

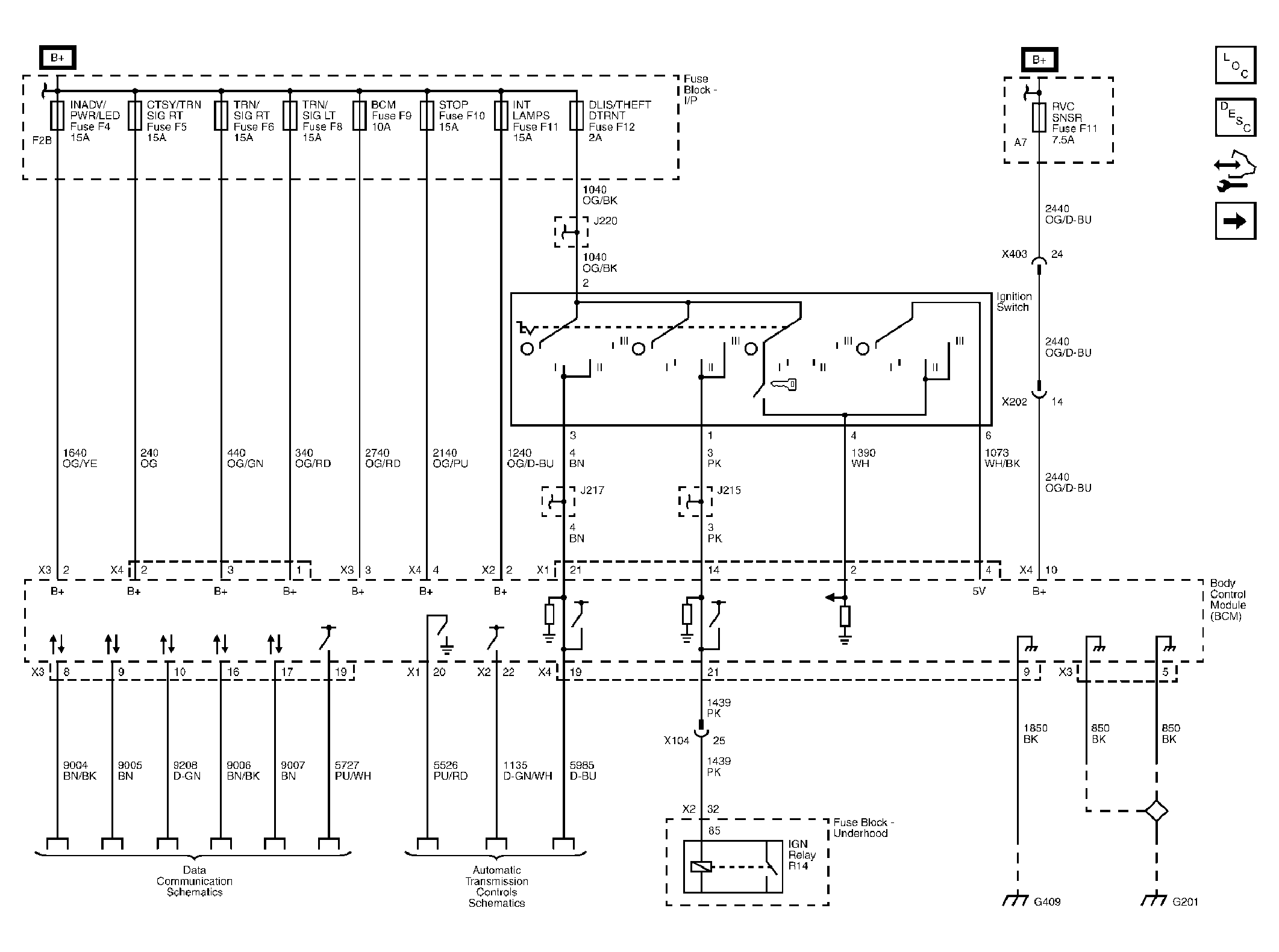
Fig 1: Module Power, Ground, Serial Data, and Transmission Subsystem References Wiring Schematic
GM2034122Courtesy of GENERAL MOTORS CORP.
Fig 2: Cruise Control, Exterior Lights, Interior Lights, Horn, Door Lock, Release System, Hydraulic Brakes, and Antilock Brake Subsystem References Wiring Schematic
GM2074590Courtesy of GENERAL MOTORS CORP.
Fig 3: Headlight, Wiper/Washer, Fog Light, Exterior Lights, and Starting and Charging Subsystem References Wiring Schematic
GM2074594Courtesy of GENERAL MOTORS CORP.
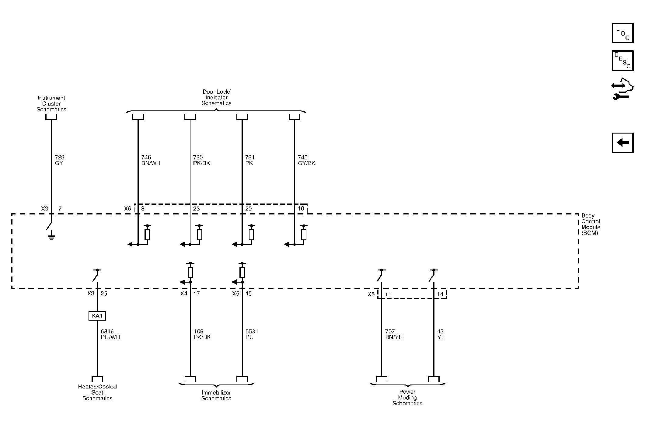
Fig 4: Instrument Cluster, Door Lock, Heated/Cooled Seat, Immobilizer, and Power Moding Subsystem References Wiring Schematic
GM2074596Courtesy of GENERAL MOTORS CORP.