lemon-mirror:
Home >> Saab >> 2005 >> 9-5 Linear, Automatic >> Repair and Diagnosis >> Brakes >> Traction Control >> Stabilizer System >> Technical description >> Braking with ABS modulation >> Notes

Braking with ABS modulation: Notes

Fig 1: Flow Diagram - Braking with ABS modulation (1 Of 2)
G03864895Courtesy of SAAB-SCANIA OF AMERICA, INC.

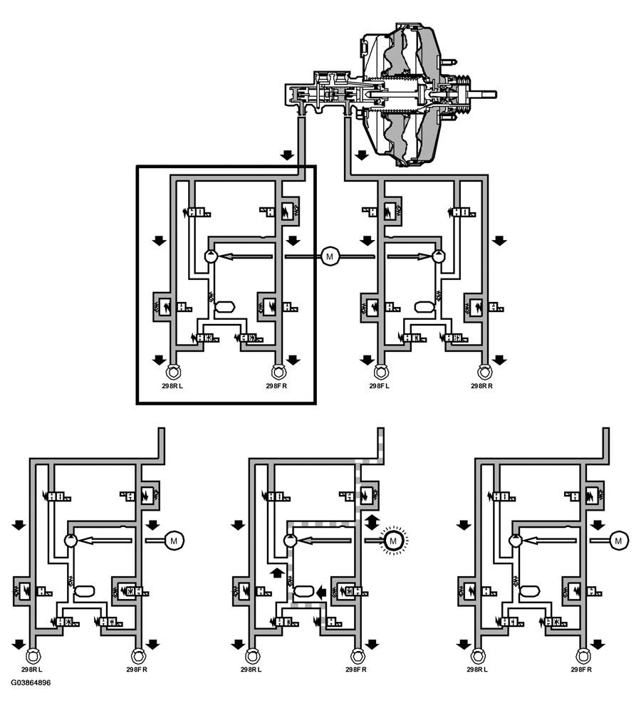
ABS modulation is activated when the system detects that a wheel or wheels exceed the permitted slip limit. The control module receives information on wheel speed. If the slip limit is exceeded, the control unit modulates the braking force with the aid of solenoid valves. The braking force is regulated separately for each wheel.

The brake pressure to each brake circuit is based on the retardations that the wheel sensors detect. The control module controls the inlet and outlet valves so that the greatest braking force is transferred from the wheels to the road surface.

When the inlet valve is closed the pressure is maintained. When the outlet valve is opened and the return pump run, the pressure drops.

ABS modulated braking will continue until:

The return pump is only active during ABS modulation and when the outlet valve is open. It returns excess brake fluid to the master cylinder.

The pressure of the brake fluid supplied is determined by the brake pressure in the master cylinder, which is proportional to the force applied to the brake pedal.

Fig 2: Flow Diagram - Braking with ABS modulation (2 Of 2)
G03864896Courtesy of SAAB-SCANIA OF AMERICA, INC.