lemon-mirror:
Home >> Scion >> 2006 >> xB Automatic >> Repair and Diagnosis >> Electrical >> Body Electrical >> OEM System Circuits >> Audio System >> Notes

Audio System: Notes

Fig 1: Audio System Wiring Diagram (1 Of 2)
G08759052Courtesy of © TOYOTA, LICENSE AGREEMENT TMS1002
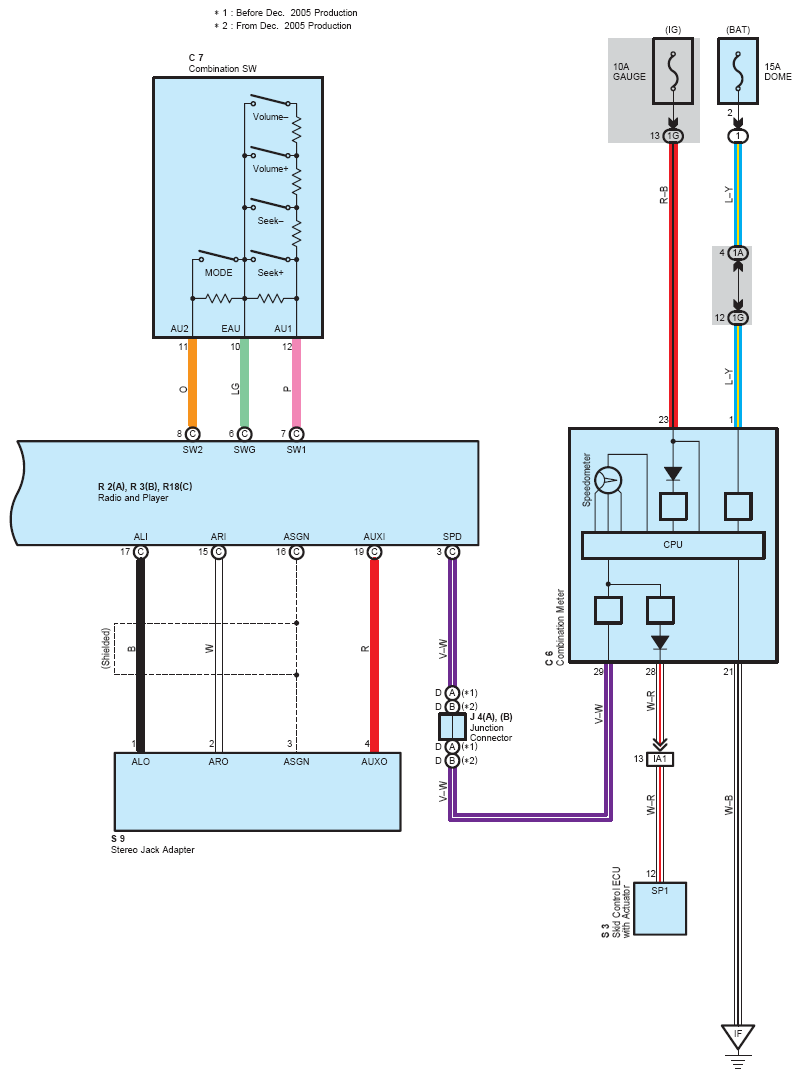
Fig 2: Audio System Wiring Diagram (2 Of 2)
G08759053Courtesy of © TOYOTA, LICENSE AGREEMENT TMS1002