lemon-mirror:
Home >> Subaru >> 2021 >> Crosstrek Base, Standard Trans >> Repair and Diagnosis >> Transmission >> Automatic Trans >> Transmission Control System >> AT Shift Lock Control System >> Inspection >> Key Interlock Cannot Be Locked Or Released

Key Interlock Cannot Be Locked Or Released

NOTE: Check of this item only applies to models without a push button ignition switch.
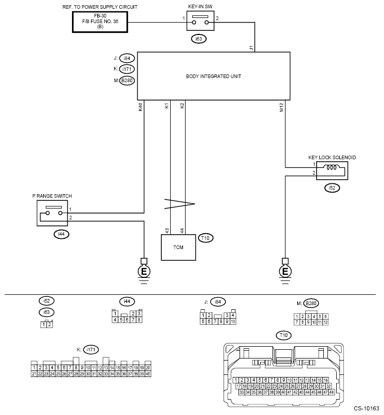
G12392784Courtesy of SUBARU OF AMERICA, INC.
  1. CHECK BODY INTEGRATED UNIT POWER SUPPLY AND GROUND CIRCUIT  .

    Check the power supply and ground circuit for the body integrated unit. Ref. to CONTROL SYSTEMS>AT SHIFT LOCK CONTROL SYSTEM>INSPECTION>CHECK BODY INTEGRATED UNIT POWER SUPPLY AND GROUND CIRCUIT .

    Is the check result OK?

    Yes:  Go to  2.

    No:  Follow the procedures to perform inspection and repair.

  2. CHECK DATA MONITOR  .
    1. Turn the ignition switch to ON.
    2. Shift the select lever to "P" range.
    3. Using Subaru Select Monitor, display [P SW] in [Data monitor] of [Body Control].

    Is the display "ON" in the P range and "OFF" in ranges other than P?

    Yes:  Go to  3.

    No:  Go to  5.

  3. CHECK DATA MONITOR  .
    1. Using Subaru Select Monitor, display [key-lock warning SW] in [Data monitor] of [Body Control].
    2. Turn the ignition switch to OFF.

    Does the display change as "ON" ←→ "OFF" when the key is inserted and removed?

    Yes:  Go to  4.

    No:  Go to  8.

  4. CHECK DATA MONITOR  .
    1. Turn the ignition switch to ON.
    2. Using Subaru Select Monitor, display [Key lock solenoid output] in [Data monitor] of [Body Control].

    Is the display "OFF" in the P range and "ON" in ranges other than P?

    Yes:  Go to  9.

    No:  Go to  5.

  5. CHECK HARNESS BETWEEN BODY INTEGRATED UNIT AND "P" RANGE SWITCH  .
    1. Disconnect the connector from body integrated unit.
    2. Disconnect the connector of "P" range switch.
    3. Check for open circuit of harness, short circuit to battery or short circuit to ground between the body integrated unit and "P" range switch.

    Connector & terminal 

    (i171) No. 40 - (i44) No. 1:

    Is the check result OK?

    Yes:  Go to  6.

    No:  Repair or replace the harness between the body integrated unit and the "P" range switch.

  6. CHECK HARNESS BETWEEN "P" RANGE SWITCH AND CHASSIS GROUND  .

    Measure the resistance of harness between "P" range switch and chassis ground.

    Connector & terminal 

    (i44) No. 2 - Chassis ground:

    Is the resistance less than 10 Ω?

    Yes:  Go to  7.

    No:  Repair or replace the harness between the "P" range switch and chassis ground.

  7. CHECK "P" RANGE SWITCH  .

    Measure the resistance between "P" range switch connector terminals. Ref. to CONTROL SYSTEMS>AT SHIFT LOCK SOLENOID AND "P" RANGE SWITCH>INSPECTION .

    Terminals 

    No. 2 - No. 1:

    Is the resistance less than 1 Ω in the "P" range, and 1 MΩ or more in ranges other than "P"?

    Yes:  Replace the body integrated unit. Ref. to SECURITY AND LOCKS>BODY INTEGRATED UNIT .

    No:  Replace the "P" range switch. Ref. to CONTROL SYSTEMS>AT SHIFT LOCK SOLENOID AND "P" RANGE SWITCH .

  8. CHECK HARNESS BETWEEN BATTERY AND KEY-IN SWITCH AND BODY INTEGRATED UNIT  .
    1. Disconnect the connector from body integrated unit.
    2. Measure the voltage between body integrated unit and chassis ground.

    Connector & terminal 

    (i84) No. 1 (+) - Chassis ground (-):

    Is the voltage 9 - 16 V when the key is inserted, and less than 1.5 V with the key removed?

    Yes:  Replace the body integrated unit. Ref. to SECURITY AND LOCKS>BODY INTEGRATED UNIT .

    No:  Check the following items.

    • Key-in switch
    • Harness/fuse
    • Ignition circuit
  9. CHECK HARNESS BETWEEN BODY INTEGRATED UNIT AND KEY LOCK SOLENOID  .
    1. Disconnect the connector from body integrated unit.
    2. Disconnect the connector of key lock solenoid.
    3. Check for open circuit of harness, short circuit to battery or short circuit to ground between the body integrated unit and key lock solenoid.

    Connector & terminal 

    (B280) No. 12 - (i52) No. 1:

    Is the check result OK?

    Yes:  Go to  10.

    No:  Repair or replace the harness between the body integrated unit and the key lock solenoid.

  10. CHECK HARNESS BETWEEN KEY LOCK SOLENOID AND CHASSIS GROUND  .

    Measure the resistance of harness between key lock solenoid and chassis ground.

    Connector & terminal 

    (i52) No. 2 - Chassis ground: 

    Is the resistance less than 10 Ω?

    Yes:  Go to  11.

    No:  Repair or replace the harness between the key lock solenoid and chassis ground.

  11. CHECK KEY LOCK SOLENOID OPERATION  .

    Connect the battery to the key lock solenoid connector terminal, and operate the solenoid.

    Terminals 

    No. 1 (+) - No. 2 (-):

    Does the key lock solenoid operate normally?

    Yes:  Go to  12.

    No:  Replace the key lock solenoid. Ref. to SECURITY AND LOCKS>IGNITION KEY LOCK>DISASSEMBLY .

  12. CHECK OUTPUT OF BODY INTEGRATED UNIT  .
    1. Connect all connectors.
    2. Insert the key.
    3. Measure the voltage between body integrated unit and chassis ground.

    Connector & terminal 

    (B280) No. 12 - Chassis ground:

    Is the voltage 7.5 - 16 V in ranges other than "P", and approx. 0 V in the "P" range?

    Yes:  Check the lock mechanism of the steering lock body.

    No:  Replace the body integrated unit. Ref. to SECURITY AND LOCKS>BODY INTEGRATED UNIT .