lemon-mirror:
Home >> Saturn >> 2000 >> LS Automatic >> Repair and Diagnosis >> Engine Mechanical >> Mechanical >> 2.2L 4-Cylinder >> Engine Oiling >> Engine Lubrication System >> Notes

Engine Lubrication System: Notes

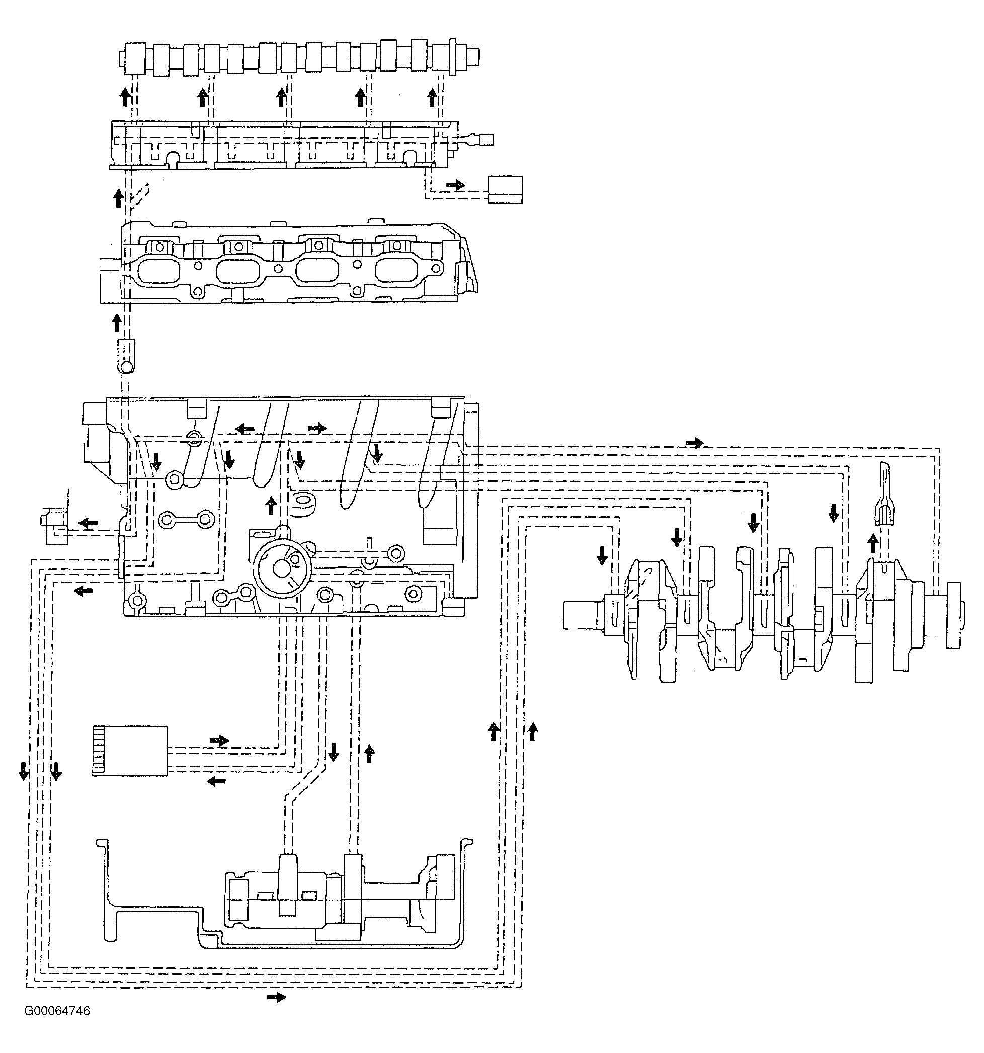
Oil is pressurized by oil pump on front cover and routed through canister-type oil filter to main oil gallery. See Fig 1. Main oil gallery runs full length of cylinder block and supplies oil to crankshaft and camshaft feed passage. Oil is also routed to timing chain tensioner and balance shaft chain tensioner to maintain chain tension.

NOTE: Oil filter canister is mounted vertically on side of engine. See Fig 2 When changing oil filter, ensure canister "O" ring is not cut or damaged.
Fig 1: Oil Flow Circuit Diagram
G00064746Courtesy of GENERAL MOTORS CORP.
Fig 2: Locating Canister-Type Oil Filter
G00236153Courtesy of GENERAL MOTORS CORP.